查看完整案例

收藏

下载
项目名称:弘阳湖州仁皇山售楼中心
项目所在城市:湖州
项目面积:763㎡
项目类型: 售楼处
设计单位:上海禾悉建筑设计有限公司
完成时间:2018年11月
本案地处山似巨凤、羽翰青翠的仁皇山景区之中,售楼处在空间塑造强调了起承转合,收放有序。运用山、水、生态三元素贯穿设计,通过水的流线性和灵动来诠释整个空间。身在其中,沁悦踱步,犹如光风霁月时的疏阔,轻轻触碰着人们内心对生活真实的态度和意愿。
沙盘区
设计总体结合水墨特色和连绵起伏的山峰,将自然带入到这个大都市之中,以精雅布局,呈现出清新、自然、舒适的空间氛围。设计以现代的手法承载自然的韵味和生机,山的姿态、水的绵延,结合柔和的空间色调,更显悠悠意境。吊灯似一个弧形的海浪将其包围其中,运用柔软的弧线,使室内的流线自由而灵动。
接待台
将空间与艺术作为载体,让自由释放的思维怦然而出。内部线条加强了空间的艺术感,通过提炼和重组,形成分离、切割和错位,产生富有情趣的新体现。
水吧
设计师取材于传统茶文化,在高大的柜子里摆满精致的饰品以及具有当地文化特色的茶罐,形成独特的文化氛围以传达项目的定位。
书吧
轻缓的山水波纹吊灯以晶莹剔透的水晶作为载体,动静怡然的空间氛围,贯穿在整个空间中,如水的圆融,灿溢出整体的魅丽之光。
深度洽谈区
以浅色为主调,配合暖色的灯光设计,营造怡然的空间氛围。山水屏风铺陈着空间层序,展现朦胧柔和之美。结合仪式感的沙发组合,柔和清雅的花纹地毯,新东方主义的简约之美扶袂而来。
VIP室
山水艺术背景墙,是整个空间的点睛之处。灯带的设计似朦胧月光,镜前盆景如同遗世而独立于月下,给人以墙外空间的错觉。
二楼会客区大厅
开阔大气也不乏浪漫气质,晶莹的水晶吊灯,一如白色的海浪、层层的云海,注目凝视,是时光精炼的注脚,精致中彰显轻盈曼妙。米色的温馨萦绕在整个空间,舒张中自有韵律与节奏。
二楼宴会区传统与现代,简约与雅致,双重审美情趣于此有机融合在一起,成就了具有东方文化特质的现代空间情趣。
洽谈区
沙盘区
沙盘区
沙盘区
门厅
销控区
销控区
水吧
书吧
深度洽谈区
深度洽谈区
一层VIP厅
茶艺展示区
二层茶艺展示区
二楼会客区
二楼会客区
二楼宴会厅
卫生间
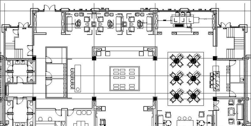
一层平面图
二层平面图
客服
消息
收藏
下载
最近






















