查看完整案例

收藏

下载
万科紫郡坐落于山西太原万柏林区,临近著名的汾河景区,背山面水,环境清幽。山西作为中华民族的发祥地之一,被誉为“华夏文明摇篮”,人杰地灵,文化底蕴深厚,太原更是有“龙城”之美誉。项目以传承院落文化为底蕴,同时追求传统与现代的交融。丰富的空间院落层次、庄重典雅的建筑形象,精雕细琢的细部装饰,无一不体现着城市厚重的历史文脉,又蕴含了鲜明的时代气息。
龙城新贵,礼仪世家
把中国宅门体系重新植入,青石阶、额枋、版门、石狮柱、花窗、浮雕……依照传统秩序层层递进,营造出庄重高贵之感,彰显世家礼仪气度。突出石材、陶、铜等景观材料的朴素质感,颜色结合建筑的风格,体现出古朴和雅致。不需要繁复的摆设和装饰,只保留空间最本真的韵味。
水景庭院,波光倒影
镜面水景倒映整个院落空间,虚实交错,交相辉映。围墙洞口,竹影望柱,随着一天中的不同时段带来不同的光影变幻。心情也仿佛摆脱尘世的喧嚣,变得平静而清澈。庭院水平如镜,倒映天光,亦衬得玻璃幕墙愈加剔透。在这里,生活本身似乎已经成为了展品。
斗拱飞檐,精致细节
以现代手法重新演绎传统建筑,立面上以简洁的玻璃幕墙上的竖向划分,创造出近似古典梁柱体系的肌理,通过层叠的挑檐、装饰纹理来强调建筑的水平向线条,重现传统建筑舒展、开朗的水平稳定感。并以现代材料模拟传统出檐比例,形成舒缓而有层次感的“飞檐”意象。
和而不同,错落有致
街是城市的公共空间,是城市界面和肌理的重要组成部分。以沿街低层的建筑,构成对外较为封闭而连续的商业界面。对沿街商业的体量重新进行解构,化整为零,建筑的材料、色彩、体量,都保持着大致的相近和协调,多样变化中体现出统一的连续性。使街道和建筑,虚与实,内与外,具有更强的逻辑和形象上的联系,形成浓郁的传统街巷的氛围和韵味。
刻古雕今,精细典雅
鳞次栉比的双坡屋顶,与青灰色的石材墙面,共同诉说着太原城市的历史文脉。同时,深咖啡色的金属线条配合简洁纯净的体量,又彰显了富有现代感的典雅气质。金属百叶的运用丰富了立面肌理,与玻璃共同营造出虚实相映、光影交错的空间层次。
总平面图
出入口分析
交通分析
消防分析
停车分析
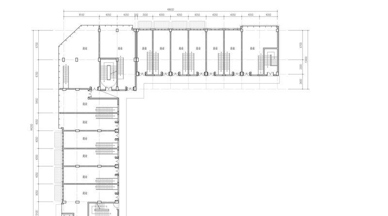
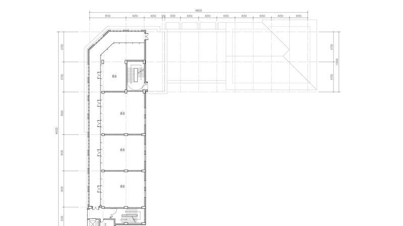
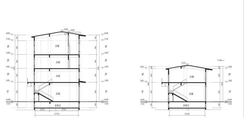
社区商业
社区商业
社区商业
社区商业
社区商业
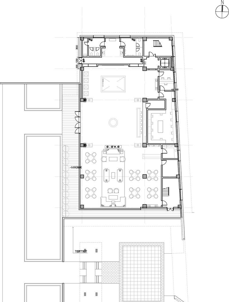
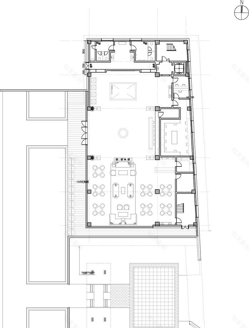
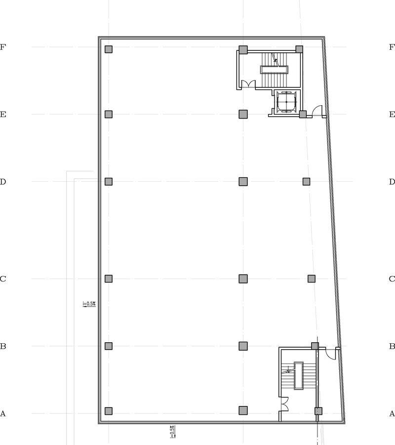
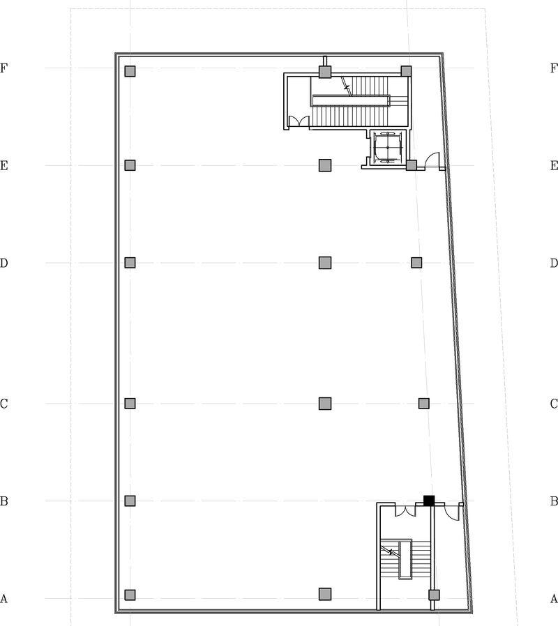
社区中心
社区中心
社区中心
社区中心
社区中心
社区中心
社区中心
社区中心
社区中心
高层住宅1/2
高层住宅1/2
高层住宅1/2
高层住宅3
高层住宅3
高层住宅3
高层住宅4
高层住宅4
高层住宅4
客服
消息
收藏
下载
最近



















































