查看完整案例

收藏

下载
城市的发展是一个不断延续的历史过程,一个城市的空间及建筑都深刻的记录和承载了不同时期的历史和文化;苏州则是一个充满着“礼制”与“诗意”之人文精神而并存的城市。本案位于苏州工业园区金鸡湖,独墅湖双湖板块。项目所在的位置远可借独墅湖,金鸡湖之景,近可借园中曲水流觞之境,自成一派。
会所在“意趣活泼、野致横生”的主题下,将实体空间与景观结合在一起,采用非对称的空间形式,塑造出传统的苏州园林式的空间形式,做到移步移景,秩序与雅致共存;在规划设计上,与宋代平江古城一脉相承。充分利用地理条件,规划布局与景观带密切结合,组团形制,既包容开放的街道,又保留传统院落的含蓄内敛。“水陆平行,河街相邻”式的棋盘式格局。
院落
地下空间
虚实空间
鸟瞰实景
正顶视实景
会所主入口
屋檐实景
一进院门厅
一进侧院
二进水院
二进院
二进院
三进院
四水归堂
室内空间
地下空间
体块演化(动图)
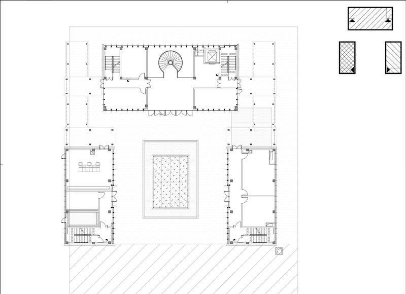
首层平面图
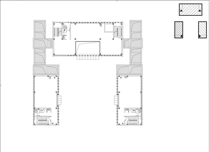
二层平面图
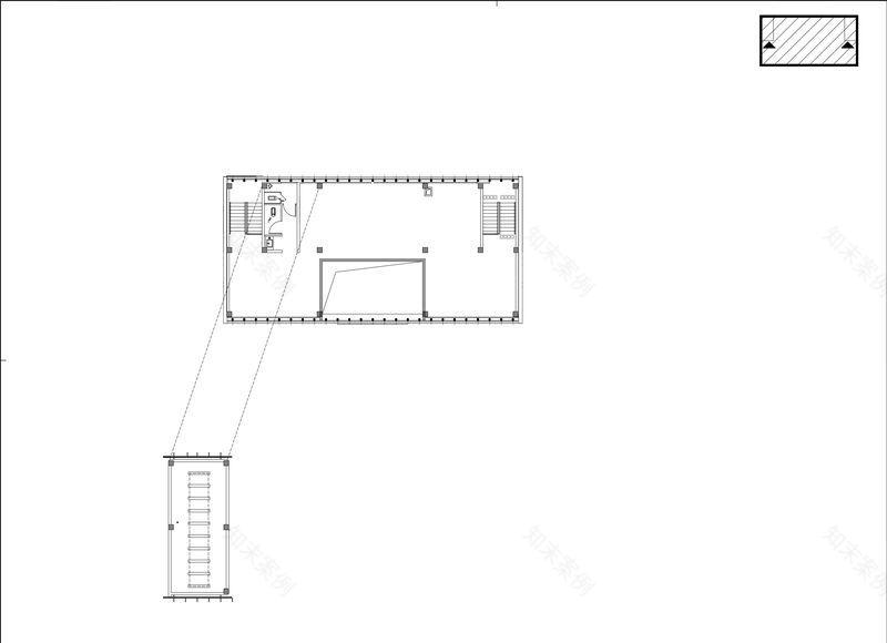
三层平面图
地下一层平面图
立面图
剖面图
客服
消息
收藏
下载
最近






















