查看完整案例

收藏

下载
本案是位于郑州市郑东绿博园区域永威置业项目—永威上和郡的两套豪宅样板房,南临贾鲁河城市景观河道,西临城市景观带贾鲁河滨河公园,绿地、水域、鸟禽等自然生态资源丰富为本项目提供了休闲、养生的田园式环境。
项目类型分别为叠层、洋房两套度假居住空间,根据项目独特的自然生态资源,设计团队在设计之初通过和业主方的充分沟通后,设计团队携手“国际一线品牌”家具,为未来的精英客户群体实现拎包入住精装精品豪宅,在设计风格上希望为来到这里居住的都市新贵营造一个极简而自然的现代品位空间。
This case is located in zhengzhou zhengdong green expo park area yongwei real estate project-yongwei shanghe county two sets of luxury house model houses, south of the jialuhe river urban landscape river, west of the city landscape belt jialuhe riverside park, green space, water, birds and other natural ecological resources rich for the project to provide leisure, health rural environment.
The project types are two sets of vacation living Spaces: Laminated villa and foreign house,according to the unique nature of the project,at the beginning of the design by the design team and the owner after full communication, the design team hand in hand "international first-line brand" furniture, the elite group of customers for the future to realize a handbag in hardcover boutique mansion, on design style to the urban upstart came here to build a modern minimalist and natural taste.
客厅
一层平面图
二层平面图
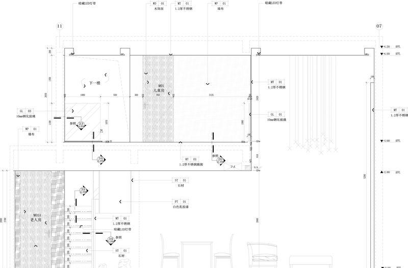
客厅立面图
客厅
客厅
客厅细节
客厅
客厅
客厅
餐厅
餐厅
茶室
茶室
主卧
主卧细节
长辈房
长辈房细节
儿童房
主卫
客服
消息
收藏
下载
最近






















