查看完整案例

收藏

下载
设计主创:刘奇
项目地址:一锅香火锅店▪御河湾店
项目面积:400㎡
风格类型:现代混搭
设计说明:本案在材料组合运用上技艺娴熟,用很现代的形式打造了一场食色生香的场景。温润的原木一方面雕琢着开放式空间的边界,另一方面又如同餐厅的动脉,仿佛潺潺流水赋予整个空间生机活力。席间随意散露出来的灯光影影绰绰,仿若时光嘀嗒,在一餐一食、一饮一酌之际,卸下我们满身的疲惫,给予我们与家人岁月静好的痕迹。别出心裁的顶饰设计,成为整个空间的精粹之笔,仿佛能带人瞬间置身云端时空。整个空间景深幽邃,静候着到访的食客。简洁的灯饰,黑色铁艺框架与清心明亮的玻璃隔断,抑或是精心安置在转角处的绿植,每一处都值得食客用心体会。
项目面积:400㎡
风格类型:现代混搭
设计说明:本案在材料组合运用上技艺娴熟,用很现代的形式打造了一场食色生香的场景。温润的原木一方面雕琢着开放式空间的边界,另一方面又如同餐厅的动脉,仿佛潺潺流水赋予整个空间生机活力。席间随意散露出来的灯光影影绰绰,仿若时光嘀嗒,在一餐一食、一饮一酌之际,卸下我们满身的疲惫,给予我们与家人岁月静好的痕迹。别出心裁的顶饰设计,成为整个空间的精粹之笔,仿佛能带人瞬间置身云端时空。整个空间景深幽邃,静候着到访的食客。简洁的灯饰,黑色铁艺框架与清心明亮的玻璃隔断,抑或是精心安置在转角处的绿植,每一处都值得食客用心体会。
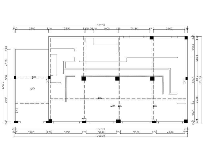
原始结构图
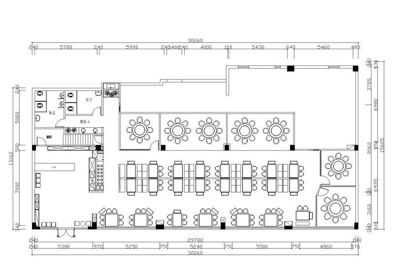
平面布置图
客服
消息
收藏
下载
最近
















