知末
知末
创作上传
VIP
收藏下载
登录 | 注册有礼

南昌院子四季之美丨中国南昌

2018/11/26 16:45:43
查看完整案例
微信扫一扫
收藏
下载
南昌院子127合院样板房
项目主创:邹洪博
项目地点:江西 南昌
项目面积:420㎡
芳春,繁花似锦,百媚千姿;
​​​夏日,喷泉飞瀑,莺歌蝉鸣;
三秋,花红果硕,满城飘香;
清冬,雪花翩翩,玉树琼枝。
借用南昌四季之美,为软装定调;寄情于景,景对川水,浸染神谕,悄然不惜却又心心相惜,看清其美,尽享其韵。打造南昌院子独有的别墅大宅产品。
南昌院子四季之美丨中国南昌-9
南昌院子四季之美丨中国南昌-10
南昌院子四季之美丨中国南昌-11
南昌院子四季之美丨中国南昌-12
南昌院子四季之美丨中国南昌-13
南昌院子四季之美丨中国南昌-14
南昌院子四季之美丨中国南昌-15
南昌院子四季之美丨中国南昌-16
南昌院子四季之美丨中国南昌-17
南昌院子四季之美丨中国南昌-18
南昌院子四季之美丨中国南昌-19
南昌院子四季之美丨中国南昌-20
南昌院子四季之美丨中国南昌-21
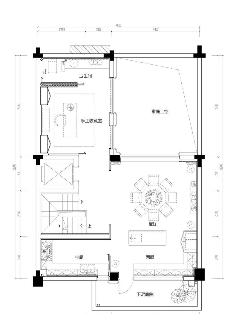
首层平面图
南昌院子四季之美丨中国南昌-23
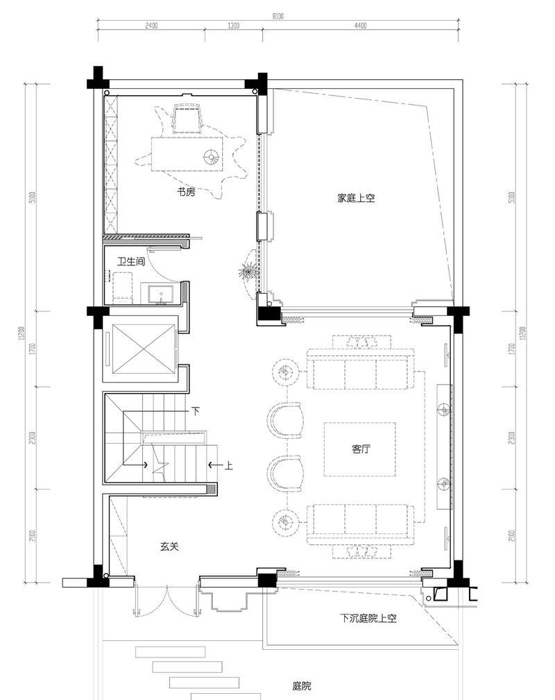
二层平面图
南昌院子四季之美丨中国南昌-25
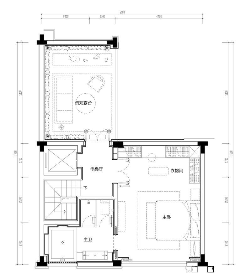
三层平面图
南昌院子四季之美丨中国南昌-27
地下一层平面图
南昌院子四季之美丨中国南昌-29
地下二层平面图
南京喵熊网络科技有限公司 苏ICP备18050492号-4知末 © 2018—2020 . All photos and trademark graphics are copyrighted by their owners.增值电信业务经营许可证(ICP)苏B2-20201444苏公网安备 32011302321234号
客服
消息
收藏
下载
最近