查看完整案例

收藏

下载
主持设计:危小飞
项目负责:筑桥壹组
项目类型:住宅空间
项目主题:始禅·致安
项目设计:深圳市同筑空间设计有限公司
软装设计:深圳市云尚软装设计有限公司
项目地点:深圳·南山区三湘海尚花园
项目面积:310平
装修风格:现代·东方禅意
投资计划:硬装;6500元/平方 软装;200元/平方
设计费用:300元/平方
实景落地:2018·03
设计阐述:
禅意,即是生活百态,也是人生一念,纵使世界瞬息万变、年华岁月几许纷繁,在这“一花一木一清幽、一画一韵一风雅,一石一物一安宁,一禅一意一栖居里.”都能够以一颗平实简约、大智若愚的状态,享得一份清雅安闲、自在心悦!
设计师以“禅意”立本,利用自然,结合设计、软装搭配,打造出一个远离浮华、返璞归真的居所.冬日夏月春叶秋木,每个季节的美,都落痕于此,成为生活的样子,融进温馨祥和的家里;而这四季景亦是禅意境,真正的让生活回归自然本心,虽然还在这城市之中,却已脱身于繁华之外,生活在此,心安且悦,清净从容.
春华秋实意 禅静一栖居 始禅、致安 !
移步换景是禅意设计的一种手法,用不费吹灰取一方自然也是,休闲区吧台和厨房的设计布局就完美的切合了这两点概念.每一块石材、每一种纯粹的色调,每一扇玻璃后的绿荫盈月,彼此衬托,相互融合,融入设计、空间与生活.
闲暇时,落座吧台,品茶赏景,感受自然的淡泊气息,真真是实现了“大隐隐于市”的生活状态.
空间的通透感贯穿客厅、餐厅与厨房,这种一脉相连的设计,
以白色现代空间为铺垫,结合木质定制家具、水墨瓷砖形成整体的视觉感,塑造出淡雅的生活格调,达到了宁静致远的效果,让身心都得到舒展.
连畅的开放式格局设计,也借鉴了禅意美学中的空间对称,即是精炼纯净、随性简朴的艺术,又是亲切自然、舒适实用的生活.
连畅的开放式格局设计,也借鉴了禅意美学中的空间对称,即是精炼纯净、随性简朴的艺术,又是亲切自然、舒适实用的生活.
质朴的墙面与新中式家具设计,仿佛净化了尘世浮华,沉淀了岁月,稳重地令人安心.
林木光景倒映在大理石地板上,顺而折射于电视墙面,形成连绵的层次,使心也变得宽广清阔起来;
而那深色木质墙面上的艺术画作,亦是一笔点睛,为这个简雅的环境,附着上内在底蕴与宁谧氛围.
这份宁谧,离不开与空灵山水的挂画,亦是由蓝色系列的抱枕、地毯所引胜;
那如同大海、天空或宇宙的颜色,充满了明朗浪漫,承载着无需言明却记忆悠深的情愫,述说着低调的东方禅语.
舍繁俗杂物,方可显禅空,以此为灵感,立细枝落地灯,
再取花鸟木叶、云海山川的自然装饰置于屋内,
为空间增加了些许闲趣与生动.
方格之间,丛书落落,是生活当有的状态; 圆桌之上,束束草花,是温馨安然的生活追求; 餐厅借由“天圆地方”的禅境概念,呈现出家和、情暖、岁月甚好的画面.
通道独具流动的空性气质,一花一鸟相应,一木一石相显.
“离别繁华世,归隐山竹林”,这是对主卧意境最直接的阐述,
通道独具流动的空性气质,一花一鸟相应,一木一石相显.
原木地板和定制柜桌都是自然禅意境的延续,让空间外是天然画,其内是雅致居.
自在放松的空间里,是无相是空相,亦是脱离纷扰喧嚣之所.
衣帽间和书房的设计承接主卧,以米白色为主色调,原木材质为地板,延长了空间视觉,虽简约,但洒脱.
橙色椅、黑色桌、工艺吊灯的搭配设计,则是对空间的点缀——“享一朝闲趣,赏四季树影”.
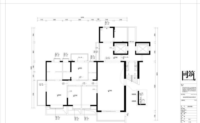
原始结构图
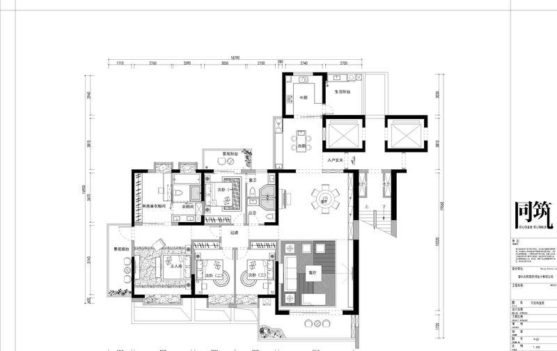
平面布置图
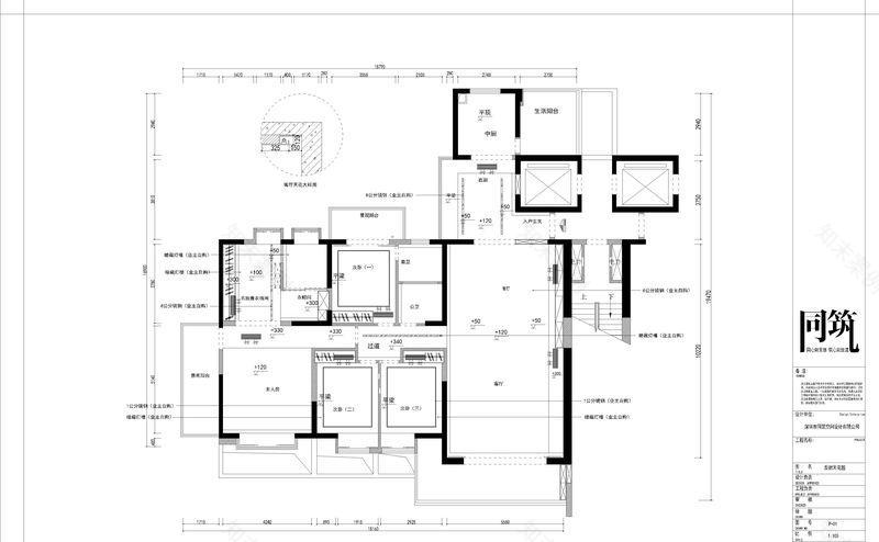
天花设计图
客厅全景图
客厅效果图
餐厅效果图
卧室效果图
客服
消息
收藏
下载
最近































