查看完整案例

收藏

下载
项目名称:海口观澜湖观悦售楼部
项目地址:海南.海口
设计单位:河南西元绘空间设计有限公司
施工单位:河南恒名装饰工程设计有限公司
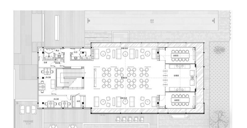
设计面积:673㎡
主创团队:张宁、常晓培
灯光设计:SCL照明
摄影:如初建筑空间摄影
主要用材:地砖、乳胶漆、3M木纹贴膜、木纹铝、仿古铜不锈钢板、硬包布、火山岩、博洛尼灰大理石
设计时间:2017年11月
竣工时间:2018年5月
海口 一个有魅力的城市.项目位于海南省.海口市.观澜湖度假区.一个一望无际的绿野之中。
建筑本身是一个上下两层大小不一的玻璃盒子。周边环境绿意盎然、晴空万里。建筑本身无过多的承重墙体。
空间的整体风格为现代风格,局部空间会有中式元素的融入。
一层:空间功能定位是一个展示空间,服务台、沙盘、楼梯排列在一条中轴线上,串联起来,做为一层的核心区域,周边为通道,窗帘纱幔自顶而垂,朦胧飘逸,通透的玻璃窗,无边的游泳池与建筑空间完美的结合在一起,水天一色,浑然一体。
一层的设计重点在于应一层面积的局限性产生的重要功能的缺失与二层空间功能的联系,楼梯位置重新做出定位,对结构做出调整,最终使楼梯位于一个醒目又重要的位置。
楼梯:一个有趣的空间,一侧墙面通顶,墙面开有洞口,可借景;一侧通顶书架,书架通透,可观景,楼梯围合与中间,形成半封闭空间是,亦可通透。楼梯与墙面之间预留的空隙,身如其中,又可产生飘悠悬浮感。
二层:对一层空间功能的延伸,大面积玻璃落地窗,拓展视野;室外景色的借入,室内拥有别样景致。可变的推拉格栅,很好对功能分割为三个空间,功能做出改变时,便可变形为可以学术交流的共享空间。二层配有茶室,人在其中,轻松自然,约三两知己,喝一杯清茶,看几本好书,便可饮一个午后。
接待茶室
一层
一层沙盘区
楼梯
楼梯间
二层洽谈区
二层洽谈区
二层洽谈区
一层平面
二层平面
客服
消息
收藏
下载
最近












