查看完整案例


收藏

下载
我的人生一直都是永昼,永远光明。所以我绝对不会允许自己沉到地平线下去。—— 黑暗荣耀
“工作累了,就要去旅游,去美术馆逛逛,要慢慢享用晚餐,你需要这样的生活。”这是左晚设计总监 Tiya 对业主说的话。
01NIGHT TIME
夜享玄关
陈星宇的灯照亮了月球表面的黑暗,照的沟壑分外生动。进门心动的 0.01 秒就是他们最值得存在。
从不用高度,角度观察它的时候,灯光在内分布且交互,是星河帷幕,是流星尾巴,像尖塔里的小宇宙。
P. 01
这是一个转变的时刻,从外界的喧嚣中回归到自己的空间。当夜幕降临,灯光柔和,仿佛为你点亮了一盏迎接回家的明灯。这个时刻,居家成了一个能够净化心灵的港湾,一个安放自己的温暖角落。
P. 02
P. 03
P. 04
P. 05
P. 06
多种类型沙发的摆放,怎么样的坐姿,睡姿都可以存在这个空间里放松,深深沉入当下。暗黑并非沉默,而是悠然于心。
P. 07
P. 08
P. 09
白天驰骋商场,夜晚杯盏交错。踏入家的那一刻繁华已尽,只留下了内心的沉静。坐在沙发上享受只属于自己的时刻,纯粹而真实。
P. 10
P. 11
P. 12
P. 13
P. 14
上楼走到自己的小空间里,放上一本电影。暗黑的空间生出一种安抚的力量,仿佛就是空间本身的,也是生活本身。不需要刻意的渲染,审美的愉悦不加酝酿的敲打着内心的窗户。
P. 15
黑色主导的化妆间,利用原建筑窗户举架,变身为全身镜。镜面不锈钢的运用,使得空间超“深”发挥,形成一个黑暗的地底湖,日出的橙色浮在湖面沉在湖底。
P. 16• 02DAY TIME
日享晨起光脚穿过地板长廊走到餐厅,像猫一样没有一点声音。水晶杯里放入冰块,倒上一点威士忌,是一天的开启方式。音响里响起最近钟爱的大提琴曲《imagine》,躺在蛋壳沙发里看着雾霭江景燃完一支烟。
P. 17
P. 18
P. 19
P. 20 起身走到大大的岛台边,煎两个单面鸡蛋就是当日早餐。简单的生活习惯和空间再适配不过。
P. 21
P. 22
P. 23
P. 24• 03DREAM TIME 梦享
踏进主卧,乳白色的涂料墙面与棕色木作相得益彰。在这个私密领域,阳光透过落地窗洒在极简床上,展示出了业主对舒适与品位的追求。
P. 25
P. 26
P. 27 步入三米多层高的衣帽间,仿佛置身于财阀主人公的私密领域,感受奢华与尊贵的完美交融。这里是品味的象征,亦是居住的艺术。
P. 28
P. 29 P. 30 夕阳余晖洒在卫生间的岩板上,打开龙头,清澈的水流声营造出奢华的沐浴体验。
P. 31
P. 32
P. 33
次卧一以米白色调为主,整体空间呈现出精致温馨的设计理念。大靠背的床屏与高低错落的床头柜,每一个细节都传达着对品质生活的追求,让人倍感宾至如归。
P. 34
P. 35
P. 36 次卧二的设计充满了俏皮有趣的元素。弧线型的床背景造型、顶上弧线型的灯带以及床上抱枕的巧妙堆叠,为居住者带来别样的视觉享受。透过落地窗,城市的窗景一览无余,为居住者带来欢愉的居住体验。
P. 37
P. 38
P. 39• 04ANALYSISDIAGRAM 分析图
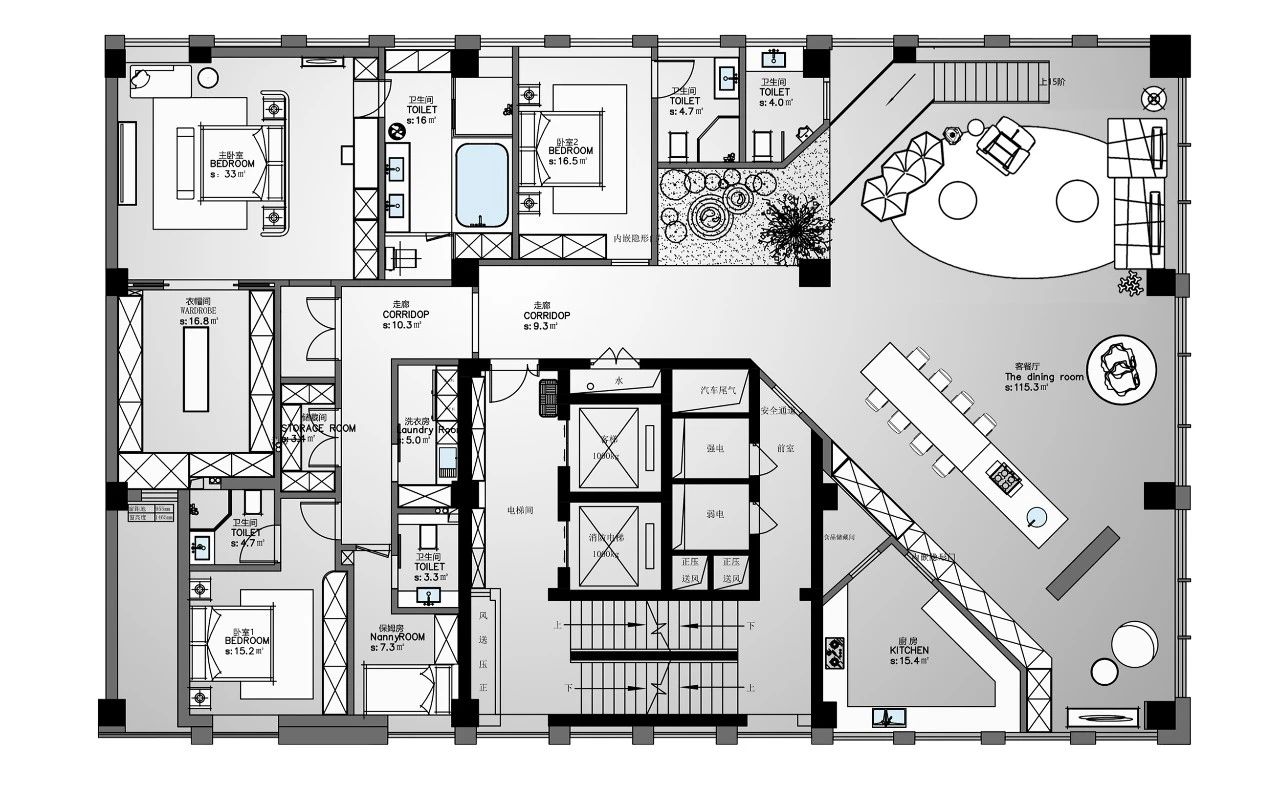
平面图 P. 40
INFO
- 项目名称 - 炬日大厦
- 设计机构 - 左晚空间设计
- 设计总监 - Tiya 操毅蕊
- 硬装设计 - 时健洲
- 软装设计 - 赵倩倩
- 项目面积 - 365
- 项目地址 - 浙江 杭州
- 项目摄影 - 汪敏杰摄影工作室
DESIGNER
操毅蕊
左晚空间创始人 - 设计总监
左晚空间设计机构/NIGHT STUDIO,专注研究豪宅顶层设计,首个将硬装、软装、管家教学管理与空间设计融于一体,以铸造英式管家服务的豪宅设计体系为目标的设计机构。通过独创的管家培训体系,为业主提供不仅包括硬装设计、软装设计、施工管理、管家培训、陈设艺术设计等在内的品牌全系顶层设计。
STUDIO NIGHT 设计机构自创⽴至今,先后为多个精英家庭提供了设计及⼯人培训服务,以国际化和专业化的私⼈定制设计服务,取得客户的⾼度认可。
客服
消息
收藏
下载
最近










































