查看完整案例

收藏

下载
本案地处深圳北站超核枢纽区,该地理位置深度融入经济文化发展快车道,承接粤港澳大湾区发展驱动力,因此繁华、流动、嘈杂也是此处的常态。立方设计出品的超核紫云府正以沉静内敛的形象介入,诠释着高品质的城市宜居空间。
△实景图
项目概况
项目位于深圳龙华玉龙路与民塘路交汇处,周边路网发达,交通便利,距离深圳北站仅200m,驾车15分钟即可轻松到达市中心。
△场地情况
由于基地处在深圳北站核心商务区、龙华CBD中心位置,周边汇聚了城市级商业、商务、生态、人文系统,资源类型丰富,大量人才在此聚集。
西南侧的南园公园也提供了良好的景观生态资源,得天独厚的地理优势使得项目具有独特的气质与特性,设计师希望打通家、社区、城市之间的服务壁垒,为北站核心商务区打造具有划时代意义的人居作品。
总体规划
择址未来城市发展中心,项目将在建筑、景观、户型等全方面革新。
△鸟瞰图
项目占地约8720㎡,整体容积率5.78,整体规划采用2栋45-46层超高层住宅分布于场地之中。在较高容积率的限制下,打造品质规划需要对内、外环境充分考量。
△沿街透视图
由于地块与南园公园相隔极近,一线公园景观很重要,但是周边的城市景观仍有竞争力;南偏东的朝向布置能够为业主发挥最大的景观视野优势,同时沿街布置能够将西侧高架地铁噪音及心理干扰降低到最低。
△总平面图紫云府的规划布局,使得楼栋在多次日照精研下做到距离最适宜,同时地块西侧的社区景观作为公园景观的补充延伸,让绿意无缝渗进小区,打造“公园里的家”。塔楼视线也实现了完全错开,以最优的态势,将周边景观一览无遗。
展示界面临街转角界面是项目气质呈现的关键,通过精神堡垒和流水叠瀑带来的视听冲击有效提高昭示性。还有层次丰富的花境景观及标识软装的点缀,营造场地边界感的同时,形成调性统一的软性界面,传达质感的生活气息。
△街角效果
社区入口位于场地东侧,10米高的入口极具昭示性。选用深灰色系石材铺装搭配立面精细的香槟色金属格栅,开合交替,虚实相生,辅以门前的孤松流水点缀,形成大气舒展的门户形象。
△社区入口
二层大堂以格栅及架空形式弱化体量感,强调首层形态横向体量感,以片墙形式引导步移景异的场所体验。结合灯光在夜幕中塑造一个闹中取静的城市展示面,也为居者打造低调奢华而又舒适的归家体验。
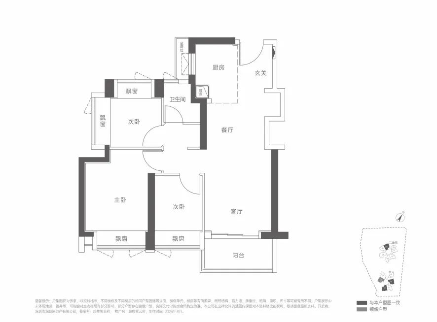
△空间细部产品设计从「居住需求」升级到「精神享受」:项目涵盖建面约69㎡-95㎡面积段户型。团队严格遵循“全明设计、结构实用、功能齐全”几个原则,对单体内部空间的尺度、舒适性及得房率反复推敲。在公区中引入“LDKG”一体化的空间理念,通透性、可视性、互动性更强,接受多种生活场景发生的可能。
△93户型图
93户型,三房两厅两卫
大空间满足全生命周期,实现小户型“豪宅感,布局成熟,房间级配合理,超大横厅设计。
△93B户型图
93B户型,三房两厅两卫
布局成熟,户型再小也要有玄关,利用墙体内凹
预留了超大玄关位,三开间南向采光。
△82户型图
82户型,三房两厅一卫
三开间南向采光。
超大酒店式卫生间,将淋浴间与马桶、洗手台分开,实现干湿分离。
△夜景图
“如何能让建筑不仅是孤立的个体,而是集合建筑、人与自然的绿色城市景观”,是我们在设计中贯穿始终的立足点。我们希望在这个面积并不大的场地里能够将自然与人居环境有机融合,为人们提供一处无界共融的舒心之所。
完整项目信息
项目名称:华润超核紫云府
用地面积:约8720㎡
建筑面积:约70400㎡
业主单位:深圳市润北房地产有限公司
设计单位:深圳市库博建筑设计事务所有限公司
服务范围:建筑方案及立面设计
参与人员:邱慧康、向大庆、胡祥金、林志杰、邱志勇、姚宪、徐祖元、林建宇、刘芬、黄赞杰、蔡楚浩
景观单位:重庆纬图景观设计有限公司
幕墙单位:海德工程咨询(北京)有限公司
照片来源:罗汉工作室陈俊伟
客服
消息
收藏
下载
最近




















