查看完整案例

收藏

下载
案例简介
Case description
业主:夫妻二人。互联网行业。
爱好:女主 体感游戏,跳舞,瑜伽。
男主 绿植,喝茶,躺平。
希望:实用且合理。(有躺着的沙发,喝茶的地方,能容纳6-8人的餐厅)
不希望:为了装饰而装饰。
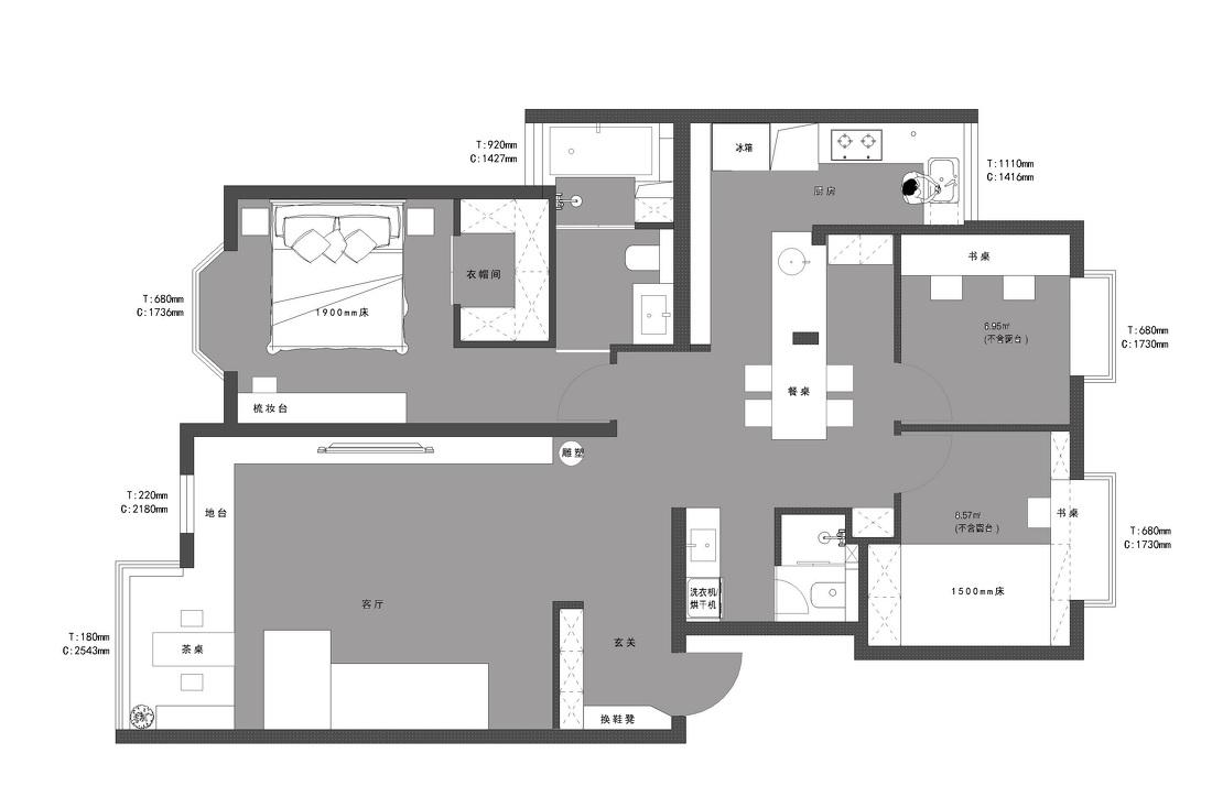
增加的玄关:从左自右分别是鞋凳、常穿的鞋柜(柜门后设穿衣镜)、储存鞋柜和挂衣区。
希望镂空挂衣底部,打破此区域的沉闷感。
原本狭小的过道,通过布局的改变和材质的变化,已经变得很有层次了。
电视墙是由吊顶,弧形延伸下来。
两道窗户不在一个平面上的凹凸感,通过茶台的地台来弱化,顺势延伸做了电视柜功能。茶台处吊顶原本有一道梁,通过木饰面吊顶,与地台连接,形成了茶台的区域,也成为了室内中一处’亭’区域,可歇,可观景。
客餐厅整体材质为深灰色墙板+木饰面,希望营造沉静的氛围。
茶台区域小景。地台镂空了一部分留了伸腿的空间,台子用的地台同材质的木板来做的,高度65公分,旁边配了形态优雅的植物,希望用简洁的方式体现茶台的意境。
玄关柜的设计是本案中的一个亮点,它的做法需要提前预埋好固定件从顶部受力,镂空底部是为了打破柜子带来的压迫感。这个柜子是进门的屏障,深灰色背景也衬托出了木材质的温暖。
通过这个木色将客厅与玄关做了明显的分界,增加空间的层次,达到每一步都有不一样的景。
玄关柜子做的竖条纹装饰能让朝向客厅的面更加精致,耐看。
餐厅区域的房高,为了能高一点,分割了吊顶材质,与包管的柱子一致,形成一个伞形结构,此处也形成了第二处‘亭’区域。
改造后从外置洗手台区域往厨房门口看,视线远了很多。
冰箱右侧原本是大烟道,根据烟道尺寸选择了合适的冰箱,达到了满意的嵌入效果。
餐区隐藏了一整面餐边储物柜,方便收纳餐区的物品,空格处可以放置电饭煲等电器,以及展示一些业主收藏的装饰。
厨房门口往客卫洗手台看的视角。原本卫生间将洗手盆和洗衣机分离出来,让过道的空间同时变成餐区视觉的延伸。
业主希望能温馨一些,于是三个卧室用的暖色调。
衣帽间门是设计往两边推开,打开后门洞最大化,方便内部采光。
主卫划分了两个部分,平时推拉门打开的时候干区部分也能融入卧室,不至于让卧室过道比较压抑。
餐厅旁边是两个次卧的门,靠里的一间作为书房来使用。
书房暂时是同长的两人办公,将来人多了也可以去掉一把椅子,一半的空间作为床的位置。
次卧利用了飘窗的深度作为书桌。台面往外做了30公分,再把伸腿空间的保温层去掉增加了10公分。
①打破过道区域格局,利用过道,并且压缩次卧的空间,将餐厅和岛台设置在原来过道位置。
②客卫分离:将洗手台和洗衣机外置,让餐厅空间上下视线变长,大大增加了空间通透感受。
③增加玄关:解决进门收纳,并将客厅功能细化,阳台利用局部地台增加茶台区域,并解决两个窗户不在一个平面的凹凸感受。
客服
消息
收藏
下载
最近























