查看完整案例

收藏

下载
桃花源记
陶渊明在《桃花源记》中写道:忽逢桃花林,夹岸数百步,中无杂树,芳草鲜美,落英缤纷.......
这美好的愿景是否真实存在,或许在每一个人的心中。我们尝试通过抽象化的地形、村落结构,描绘静谧、安逸的就餐情景。
空间元素:桃花林、河流、山石、瀑布、小船
“忽逢桃花林,夹岸数百步,中无杂树,芳草鲜美,落英缤纷。渔人甚异之,复前行,欲穷其林。 林尽水源,便得一山,山有小口,仿佛若有光。”
▼门面,Shopfront
空间元素:山洞
“初极狭,才通人。复行数十步,豁然开朗。”
所谓“景贵乎深,不曲不深”。经过一条幽深的隧道,层层递进,
豁然开朗,一片美好的景象展现眼前。
“土地平旷,屋舍俨然,有良田、美池、桑竹之属。阡陌交通,鸡犬相闻。”
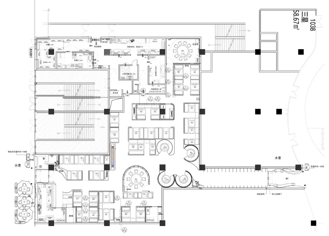
▼平面图
,Plan
项目信息,Project information
设计机构 | 广州市原计划创意设计有限公司
项目名称 | 湊湊火锅
项目位置 | 中国,上海,颛桥万达店
设计面积:400㎡
完工时间:2023年5月
主案设计师 | 廖凡帆,钟淑铭
设计团队 | 莫雪婷,易国星,王玉,刘秀丽,苏基考,李贝斯
空间摄影 | 云眠摄影工作室 Yuuuun Studio
客服
消息
收藏
下载
最近






























