查看完整案例

收藏

下载
义乌万厦御园1#西边套样板房项目说明
项目说明:
本案由浙江万厦房地产开发有限公司委托进行设计,位于江东东路与兴隆大街交叉口,与义乌市政府着力打造省级特色小镇,以金融业为主导的产业小镇——丝路金融小镇仅一街之隔,交通便利,环境优雅,周边万亩江滨绿廊、会展中心绿化公园等城市绿地与其相邻,自然环境优越,居住环境舒适;与义乌CBD中央商务区、国际文化中心区及举世闻名的义乌国际商贸城咫尺相约,区域价值独具前瞻性和优越性。
项目规划有总计214户以独栋别墅、双拼排屋为主及少量多拼排屋组成的高端精品墅区,并配套幼儿园、高端会所、游泳池等设施,是义乌丝路新区首个沿江低密度住高端城市墅区。
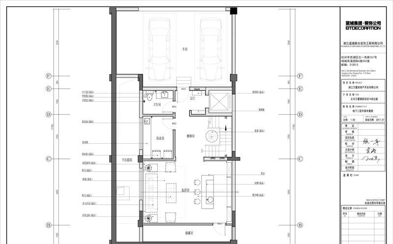
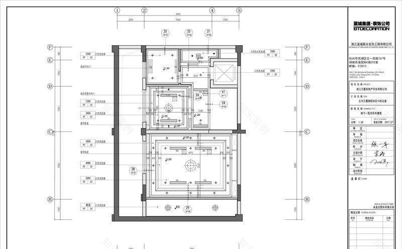
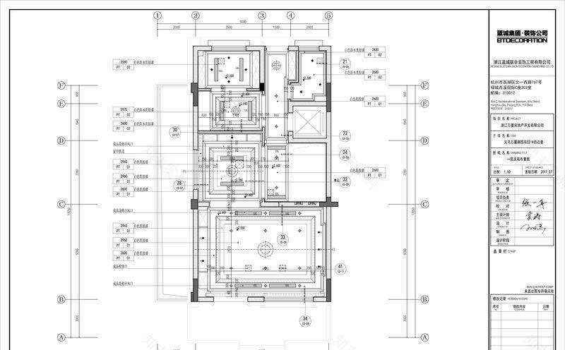
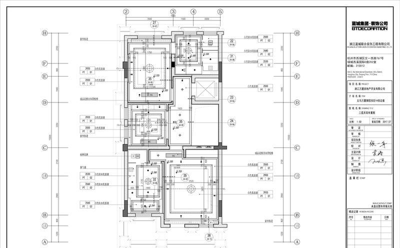
本案面积:484㎡;单方造价:5000元/㎡左右;
设计师理念:
设计源于生活,生活因设计而改变!成就空间和谐,让设计物有所值,让细节缔造完美!当人们的空间被各种物质挤压的时候,也就失去了本质,设计就是要去伪存真,去掉一切虚假的、表面的、无用的东西,而剩下真实的、本质的、必不可少的东西,因而得到更多的空间、更多的舒适、更多的效率、更多设计上的美....
功能分析:
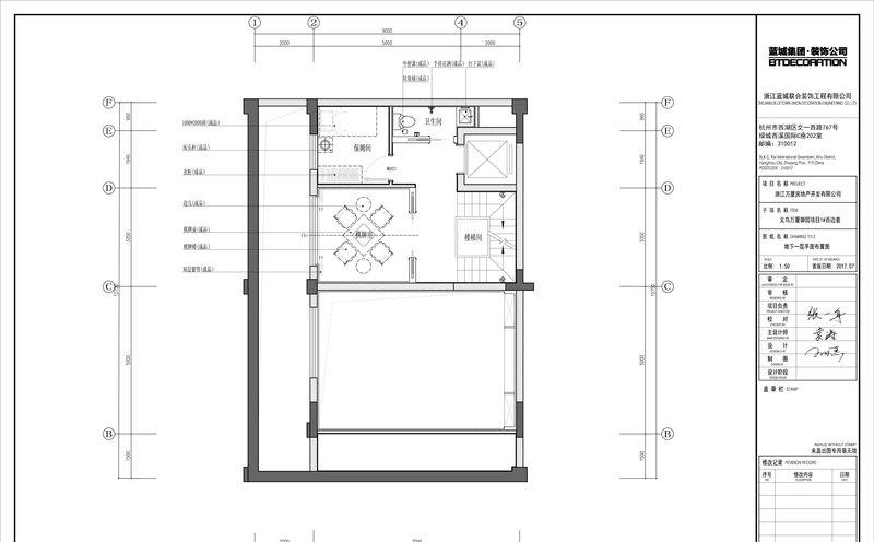
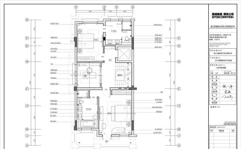
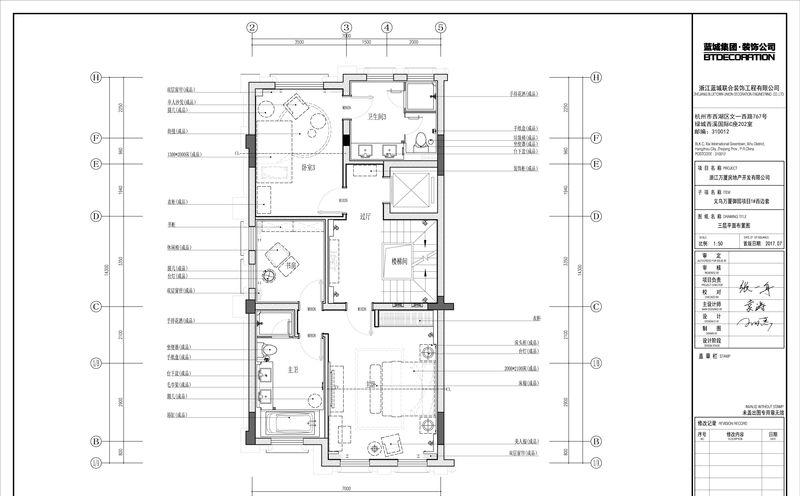
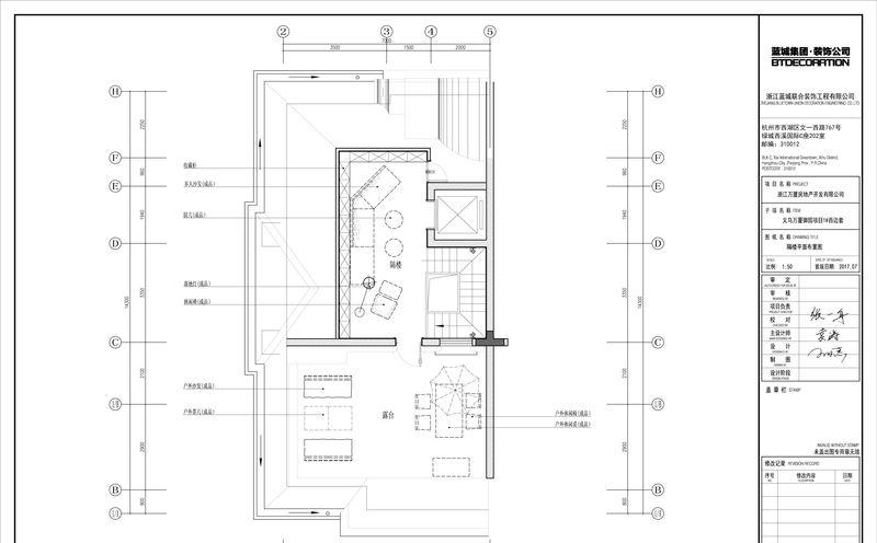
本户型为边套下跃叠排,拥有地下两层通高空间,以及近500平方米的上下5+1层(附送阁楼层)的多空间舒适排屋,总共做到了六房三厅七卫双厨,以及多个休闲起居空间。
本案独有现在叠排类项目稀缺的电梯设计,同时具有作为亮点呈现的5.0米地下挑高起居区,透过侧庭院的大面采光窗,使得地下空间的通透度得以延伸,再辅以部分休闲娱乐空间,完善了受众对地下空间述求的完整性;一层,从北入玄关到南侧面向庭院的客厅,透过一进两进的渐进式手法,以各种隐性的中轴对称串联着中西双厨、餐厅、客厅,并透过客厅的大面玻璃将视觉延伸至庭院区,因应考虑未来居住者不同的家庭组成及生活习惯,将二层及三层分别进行了有机考量,二层作为大家庭中年长成员及临时访客的使用空间,三层理所应当的成为了主人及其孩子的私人领地,而阁楼则更像一个附件值,使空间上的使用更有弹性。
项目理念:
整个户型以时尚优雅的精致法式暖调铺开,以“时尚”这个诱人的词汇,遍布设计的各个方面,却常常定义模糊,变幻不定,设计中根据当下节奏,努力探索将时尚融入空间的规律与奥秘:从简单到复杂、从外在到内在、从有形到无形、从物质到精神……时尚不只是外壳,而是时代的灵魂。室内设计引入“跨界”时尚设计理念,将轻奢感融入室内,代表着独具品味的客户群、国际化的品质感以及继承与改良和不断创新,线条元素的提取及细部不锈钢在混油饰面中的勾勒、高雅暖灰色彩基调的运用,等等更赋予了室内高贵,优雅,时尚的品质。当背景、墙体和单个的设计要素被置于相互联系之中时,风景逐渐开始显示出一种更高层次的设计性品质。
时尚简约欧式风格沿袭古典欧式风格的主元素,融入了现代的生活元素。以简单利落的直线条代替传统复杂的花纹,采用更为明快清新的颜色,既保留了古典欧式的典雅与精致,又更适应现代生活的悠闲与舒适。
客服
消息
收藏
下载
最近





























