查看完整案例

收藏

下载
本案设计师以富有内涵的新中式风格为主来进行全面考虑。在总体布局方面尽量满足业主生活上的需求,以橡木、墙纸、石材为主要装修材料,营造一种互动、温馨、轻松的现代家庭生活氛围。大量运用了橡木深色开放漆饰面,与灰白墙纸相结合,整体表现出一种符合业主的沉稳气质。
基本的设计理念为:空间的利用性,生活的温馨性,设计的独特性。
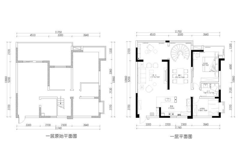
在空间上:
一楼:卧室、公卫保持不变。将原梯间位置拆除,在此基础上,将厨房进行扩建;将餐厅改到原书房位置,并将原书房顶面楼板拆除,成为6米挑高餐厅;将楼梯改造到原阳台位置;将客厅与阳台之间的门进行拆除。经此巧妙设计,楼梯、阳台、客厅、餐厅、厨房形成了一个空间上的互通。
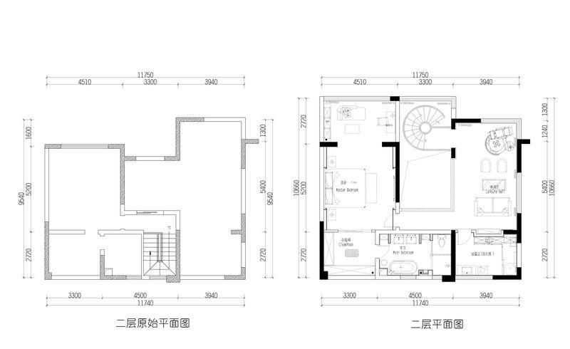
二楼:基于一楼的改造,二楼空间的休闲区整体缩小,解决了空间过大的问题,并且使得空间的呈现更为美观,更有品质感。除休闲区域外,其他空间保持不变。
厨房: 原梯间位置的拆除,使厨房进行扩建,形成了一个开放式的厨房,空间上更大的容纳性,让人与人之间的交流、互动更加轻松。
餐厅: 把原书房顶面位置拆除,改建成6米挑高餐厅,让餐厅空间变得更为宽敞。再配上墙面的水墨画山水石材,时尚的竹节吊灯,就餐氛围也变得更为轻松愉快。
楼梯: 改建在落地窗边的旋转楼梯连接2楼休闲区,上楼间还可以欣赏到岷江风景,让身心都有所放松。
休闲区:不论是一楼的原始阳台,还是二楼的原始室外空间,经过改造后,都成为了时尚、现代、有品质的休闲空间。一楼休闲区,可以感受到一楼的整体氛围;二楼,从上往下,俯视效果也是别具一格。二者的共同点便是,都可以享受到岷江江边的自然美景,与大自然有所接触,让身心都有所放松。
无论是外景,还是身处空间的沉稳,都代表着一种品质生活。
从此处,可以看到客厅的全貌,远观无色,近听有声。
橡木色的沙发和深灰色的座椅搭配,沉稳又简单。木制大象,中式台灯,而最特别的莫过于墙上的泼墨画,设计师把中式和现代相结合,让业主觉得自己仿佛置身中国传统山水画中。
客厅里除了中式的配饰和家具以外,还有属于当今的现代饰物,放眼望去,这就是品质的生活。
一楼休闲区,在客厅之外,给予主人适当的休闲空间,一小处,也可与世隔绝。
开放式厨房的设计,源自西方的设计源泉,中式的设计风格,现代化的瓷砖、水槽,一切都揉和得刚刚好。
餐厅与客厅有一墙之隔,增强了空间的层次感。圆形中式的墙面装饰,极具个性的现代吊灯,以及沉稳大气的木色餐桌,竟然让人觉得舒适简单、不杂乱。墙面挂着的是乐山具有代表性的老照片,空间给予的也会是那种旷然无外!
厨房、餐厅、客厅,空间的开放,不仅增加了空间与空间之间的互通,还大大增加了人与人之前的互动,得此,何乐而不为!
旋转的楼梯像蜗牛壳,这是家的味道——深木色和雪白的搭配,脑海中已然有一幅芭蕾女郎在楼梯上翩翩起舞的画面。
卧室的设计,让生活更有新鲜感。灯光给予的不仅是温馨,还有那恰到好处的浪漫。
空间与空间之间,生活与生活之间,总是有些许的差别,浴室的空间设计能够让主人在工作之后有所放松,细细享受品质生活。
客服
消息
收藏
下载
最近























