查看完整案例

收藏

下载
本案作为面向儿童的教育空间,整齐划一的教室过于严肃,而填满卡通造型的空间又太像游乐场所,我们希望能在严谨和童趣之间寻找一种平衡。考虑到儿童自由好动的天性和认知水平,此成长中心的设计着力于“共享”和“色彩”两个主题。
此设计突出流畅的木线条设计,高低错落,空间变化丰富有序,设计力求新颖别致,丰富了儿童的视觉,充满了童趣,通过有序的穿插,打破了原本设计的单调感,使空间变得丰富,开放绘本区形成舞台,主题区内的教室采用了深浅不一的渐变橘色,以便塑造安静专注的学习空间。室内家具局部细节采用蓝灰色彩作为跳色,为空间增加适当的活跃度。选用同色系,但是颜色深浅不一的颜色组合,打造出具有层次感的墙面,渐渐浓浓变换颜色交错间,是让人心悦梦幻迷人系列视觉的效果,如此多的元素最终却像小溪汇入大海一般,顺服于终极的情感表达。我们只想告诉,不要担心你的各种小猜想都无法实现,最终我们会在设计中实现一切,关于你想要的。在儿童空间的设计中,我们依然采用抽象的几何形式和简洁的空间语言。我们相信再繁复的设计也比不上孩子的想象力,不如多一些留白让他们自由想象。
高级灰色是白与黑朦胧的接线,犹如黎明前破晓前的天空,黑夜尚未完全退去,而太阳正在等待着升起,这一抹晦暗难辨的色彩转瞬即逝,这样简约的高级灰带有一点点的理性,将冲突的黑白两色进行了调和,整个画面感非常的柔和,几何元素融于空间细节,渐变马赛克立面也增添一抹亮眼的元素,清新的蓝色与白色修饰吹拂开碰撞的颜色,与原木色融合在一起,给了孩子们一场纯净的视觉之旅,各种玩具,各种墙面或是纯色,或是渐变,或是碰撞,或者清透,在整个幼儿园设计中,总有一款让是孩子们喜欢的颜色,可以做真实的自己,成为不一样的烟火。整个设计让人眼前一亮。
此设计突出流畅的木线条设计,高低错落,空间变化丰富有序,设计力求新颖别致,丰富了儿童的视觉,充满了童趣,通过有序的穿插,打破了原本设计的单调感,使空间变得丰富,符合幼儿生理和心理特征,获得了更好的成长生活环境。
一个童趣的幼儿园因为融入了原木色而更加出彩,所以这次设计在色彩上采用以原木色为主,自然活泼符合儿童视觉生理习惯,同时使用了马卡龙色,增加温馨感和体现学校质量。背景形象墙以简洁的集合体形代表儿童画剪影。
多功能厅吊顶依次以淡粉色,黄色,蓝色作为主题色,分别代表了可爱,活力,健康。造型新颖别致,彩色的吊顶使这个空间充满了童趣。再加入了原木色背景墙面和地面,搭配给人自然的感觉,看似简单的设计,实则暗藏玄机,使得整个环境空间更加的立体与温暖。
这个全新的环境将迎合教学环境的各种需求,开放和灵活的儿童体验空间营造了舒服的教学空间。这里为学龄前儿童营造了家庭氛围,柔软舒适的细节以及充满趣味和无限幻想的学习空间成为此区域的主要基调。设计师完美诠释了此区域的设计理念。
在整个幼儿园设计中,总有一款让是孩子们喜欢的颜色,可以做真实的自己,成为不一样的烟火。
清新的蓝色与白色修饰吹拂开碰撞的颜色,与原木色融合在一起,给孩子们一场纯净的视觉之旅,各种玩具,各种墙面或是纯色,或是渐变,或是碰撞,或者清。
在儿童空间的设计中,我们依然采用抽象的几何形式和简洁的空间语言。我们相信再繁复的设计也比不上孩子的想象力,不如多一些留白让他们自由想象。
开放绘本区形成舞台,主题区内的教室采用了深浅不一的渐变橘色,以便塑造安静专注的学习空间。室内家具局部细节采用蓝灰色彩作为跳色,为空间增加适当的活跃度。
陶艺美术室大面积使用了原木墙板及原木假梁,这种秩序和结构的关系对幼小的孩子充满了启发性,再加入了原木色的家具及柜体,使得整个空间在光线的映衬下显得柔和,自然,和户外的自然建立起一种亲近感和联系感。
高级灰色是白与黑朦胧的接线,犹如黎明前破晓前的天空,黑夜尚未完全退去,而太阳正在等待着升起,这一抹晦暗难辨的色彩转瞬即逝,这样简约的高级灰带有一点点的理性,将冲突的黑白两色进行了调和,整个画面感非常的柔和,几何元素融于空间细节,渐变马赛克立面为街道增添一抹亮眼的元素。
大厅吧台剖面图
大厅立面图
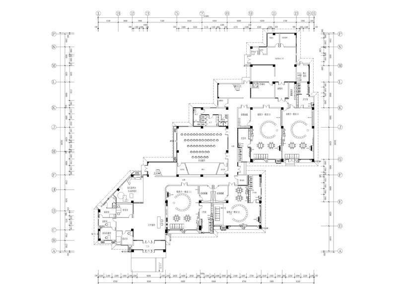
一层平面布置图
二层平面布置图
二层走廊立面图
三层平面布置图
互动游戏地面剖面图
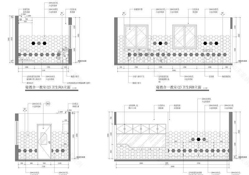
寝教合一立面图
陶艺美术室立面图
卫生间立面图
碧桂园凤凰城幼儿园设计师——欧吉勇
碧桂园凤凰城幼儿园设计师——王俊宝
客服
消息
收藏
下载
最近
























