查看完整案例

收藏

下载
空间大面积的木色更具亲和力,能够提升孩子们的愉悦感,在视觉上拉伸了空间的层次感。整个空间灯光柔和,面光源和点光源相互穿插很好的营造出空间特有的品质。整体风格统一以浅色调为主,无形中穿插英式元素,使品牌特征更加突显。通过材质及色彩的改变增加空间的亲和感,让孩子在富有乐趣的空间中培养英式高雅的艺术情操、贵族的气质,同时拥有过人的动手能力和独自生存能力。用最纯粹无杂质的白色作为主色调,用原木色加以点缀,赋予空间明亮轻松地氛围,整体空间的设计感恰到好处。空间内部以深蓝色为基调,带来一种「星工厂」般全新的炫目感受,也是整体项目中最为经典的部分。圆形,齿轮造型元素在空间中得到了大量的运用,结合了灯光的运用,为空间营造曼妙意境。整厅流线型的线条则将整体空间的设计感凸显的恰到好,充满现代感和科技感。放眼望去孩子们或静谧不言,动静皆属自然,一切都在这种“自然”的状态下有序进行,空间中多一物少一物都不会受到影响,这就是设计师努力呈现的空间,这不仅仅是一个学校,更是一个有趣味,有文化,有艺术的迷宫!
整体风格以暖色系为基调,辅助原木色。孩子在活泼的空间,用他们幼小的心灵自己去寻找梦想,自己去充满想象。强调各种功能空间足够舒适,体现公共空间的简约延展性,流通性较好。
用纯度和饱和度偏低的冷色和暖色互补,打造出一个亲近、自然、有格调的教育活动空间,颜色细腻,在搭配上更加富有创意,采用了巧妙装饰的手法,既保留了空间的功能性,也增添了趣味性,此空间给人整体视觉感受简洁,明快。
空间大面积的木色更具亲和力,提升孩子们的愉悦感。墙裙的地毯拼色功能上避免了孩子在上课过程中的受伤,视觉上拉伸了空间的层次感。房子造型的休息区趣味性十足,引导孩子空间联想。整个空间灯光柔和,面光源和点光源相互穿插很好的营造出空间特有的品质。这不仅仅是一个学校,更是一个有趣味,有文化,有艺术的迷宫!
以环保,安全、耐用的装饰基础材料为选材的主要思路。去繁化简,也是设计风格的一种体现。在严格控制项目资金的前提下,有更好的互动性和视觉感。
俯瞰整个图书馆,放眼望去孩子们或静谧不言,动静皆属自然。一切都在这种“自然”的状态下有序进行,空间中多一物少一物都不会受到影响,这就是设计师努力呈现的空间:馆内,人、书、物皆可变动。也即,在无常中追求有常。空间的本质在于满足孩子们的精神需求,设计师希望,希望,每一个热爱读书的孩子都能在这个教室找到属于自己的阅读空间。
空间内部以深蓝色为基调,带来一种「星工厂」般全新的炫目感受,也是整体项目中最为经典的部分。圆形,齿轮造型元素在空间中得到了大量的运用,结合了灯光的运用,为空间营造曼妙意境。
用纯度和饱和度偏低的冷色和暖色互补,打造出一个亲近,自然,有格调的教育活动空间,颜色细腻,在搭配上更加富有创意,采用了巧妙装饰的手法,既保留了空间的功能性,也增添了趣味性,此空间给人整体视觉感受简洁,明快。
墙壁各处的造型都暗含设计师的小心机,在此设计师打造了一处时尚新颖、无可比拟的充满童趣与梦幻的儿童走廊。整厅流线型的线条则将整体空间的设计感凸显的恰到好,充满现代感和科技感。
整体风格统一浅色调为主,无形中穿插英式元素,各种造型引出时空的连接与变换,使品牌特征更加突显 通过材质及色彩的改变增加空间的亲和感,赋予空间明亮轻松地氛围,让孩子在富有乐趣的空间中培养英式高雅的艺术情操、贵族的气质,细节之处无不体现设计的用心周到。
恰到好处的色彩搭配,满足宝贝对未知世界的探索和无穷无尽的想象空间。为了与设计效果图中的各种细节相呼应,乐高教室在原来的基础上做了重新的设计和定义,让轮廓、线条和细节更趋完美。
吧台平面图和剖面图
大厅墙面造型剖面图
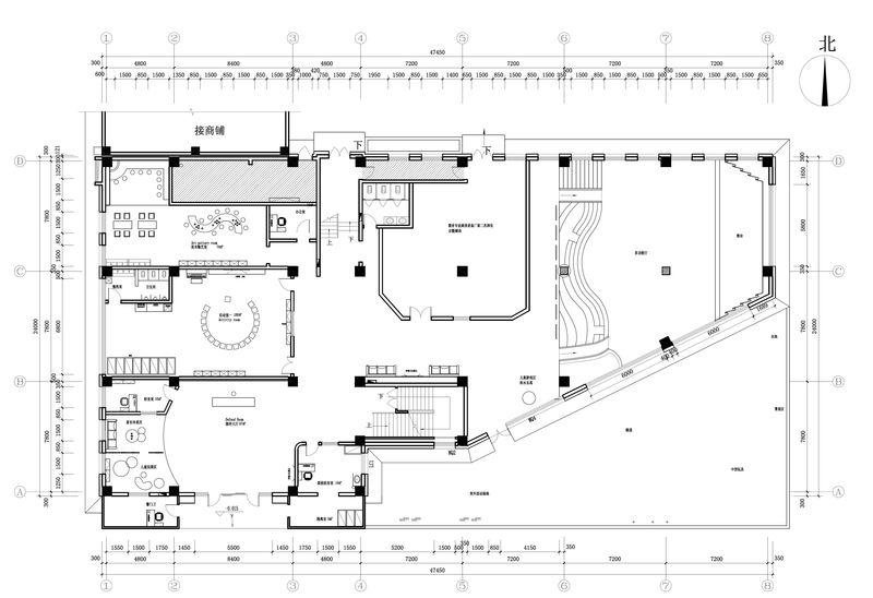
一层平面布置图
二层平面布置图
三层平面布置图
活动室A立面图
接待大厅C立面图
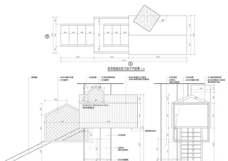
科学探索区房子立面图
乐高天花剖面图
陶艺室B立面图
新加坡曲江伊顿国际幼儿园设计师——傅会明
新加坡曲江伊顿国际幼儿园设计师——王俊宝
客服
消息
收藏
下载
最近
























