查看完整案例

收藏

下载
完成年限:2017.6
面积:180m2
由于5m的层高,将空间分为上下2层,黄铜的楼梯可以随墙面移动
项目地址:上海市黄浦区南苏州路1247号2楼
摄影师:汪昶行
大理石吧台,平时可以在这里讨论方案
主创设计师:汪昶行,朱勤跃
设计团队:Luca Lanotte(意大利),王坤阳
金色书架的设计理念来自于“书中自有黄金屋”
老上海们在追根溯源时,往往先想到的是苏州河,苏州河畔的工业建筑见证了租界的兴亡起落和民族工业的诞生发展,南苏州路1247号曾经也是杜月笙老大的私人粮仓,而后随着杜老大创办“中国通商银行“,这里又成为银行仓库重地。2017年4月,由旅美、意设计师汪昶行对其外立面及内部空间进行还原,对于历史的尊重让我们了解过去,对话经典,将历史与摩登融合,创造新的艺术生命力,让这位等待已久的“老人”粉黛妆成,优雅转身。
如果说建筑外部是对于历史的还原,而其位于粮仓二楼的NONG STUDIO工作室则是将摩登诙谐演绎的淋漓尽致。在设计时,刻意将入口区域压暗,全黑的空间给来访者一种“距离感”,但随着电动移门的逐渐打开,便是豁然开朗的4米5挑高明亮开放办公空间,空间中保留并裸露的百年原结构木梁木柱和木地板是一场与历史的邂逅,我们小心翼翼的将其保护并加固处理,随着脚步的移动,来到最后的三角区域,夹层的设计让空间的使用率达到最高,从入口到内部,空间的节奏也呈现出收-放-再收的韵律感,在材质使用上,除了对于百年历史木结构的保护,运用黄铜、玻璃、大理石、不锈钢等现代材质,将历史与摩登在这个空间中自由的对话。
玻璃隔断加强了视线的通透性和开放性
创意不是一种工作,而是一种生活方式。对于设计,对于生活,我们追求有趣的体验。在复古的空间中加入一些超尺度的元素,沉浸在自由的创作之中,设计无非是在玩弄,以如此轻松戏虐地方式优雅地呈现空间中弄设计。
回到体块功能的设计上,我们并没有以传统办公中的私密层级或者效率层级来组织空间,而是以互动的可能层级来安排空间,主创办公空间安排在进门区域,围绕其是辅助的材料空间,会客空间,金色书架,和图纸讨论区,类似图书馆的空间逻辑,工作区位于中间,书架素材区围绕,使得主创工作空间成为一个信息处理枢纽,增加互动的可能性。其中,金色的书架是你进入空间后无法避免的空间亮点,其设计理念来自于中国古语中的“书中自有黄金屋”的概念,里面展示了国内外与设计艺术有关的各类书籍和创始人汪昶行在全世界五十多个国家旅游带回的古董,玩具,设计品,乐高模型等收藏。可移动的金色书架将主创办公区挑高的二层空间有效串联起来,既方便取阅较高区域的书籍,又方便利用二层储物空间;另一面收藏架是会议室的白色不锈钢展示架,可以说是一部现代工业设计史,满墙的VITRA大师椅缩小版,限量的车模和大师签名艺术品。这两面通高展示架定义了会客空间,楼梯交通空间,和主工作室办公空间。一实一虚,后者为玻璃展面,既分隔了会客室,一楼集合办公,二楼大会议室的空间;又创造了视线上的贯通与交流,虚实背后是对于空间模糊性的探讨。
玻璃房内是茶室
当我们被所谓的“风格”和“材料”所迷惑的时候,对于设计本初的创作冲动似乎越来越单薄。在这样一个充斥着梦想和故事的黄金屋里,我们似乎察觉到我们已经太久禁锢住自己,太久不懂怎么去玩,如何去玩。当设计能够讲述一个人的生活和经历,这早已不是一个时髦的成品,而是在追求情感的本质。
三角区域设置为2层空间,下面为办公区,上面为会议室
拥有百年历史的粮仓结构被完整保留并予以加固
二楼的会议室
吧台设计细节
创始人自己的收藏
大理石桌配上黄铜的NONG STUDIO LOGO
办公室一隅
办公室一隅
办公室一隅
办公室一隅
手工制作的木质老建筑模型
工作室入口以全黑背景炮制出神秘感和好奇感,仅以条形灯带勾勒出墙面屋顶轮廓,同时作为入口引导
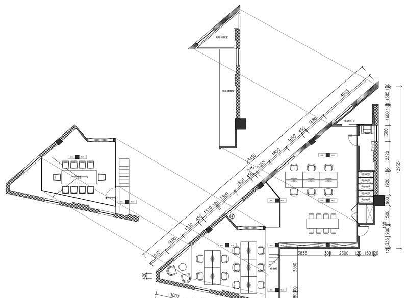
平面图
立面
结构分析
人流分析
空间分析
空间划分
空间划分
灵活设计理念
灵活设计理念
客服
消息
收藏
下载
最近





























