查看完整案例

收藏

下载
项目名称:悦目佳人
设计单位:空间几何装饰HMY设计事务所
过道
主设计师:黄茂艺
案例地址:广东揭阳普宁市御景城
主卧
建筑面积:180㎡
主要材料:透光板 黑钛不锈钢 墙布
女儿房
本案定义“商务家居”主题【千秋无绝色-悦目是佳人】概念是对于具有高贵气质与摄人风采的商场女性形象定制,首先是不受风格限制抛开束缚追求自由的人居生活,空间立面的整合隐藏设计手法不添加任何附加性繁琐的装饰,完全符合女主人的果断干脆的性格与品位。贵气而不张扬,宁静致远!
原始结构图
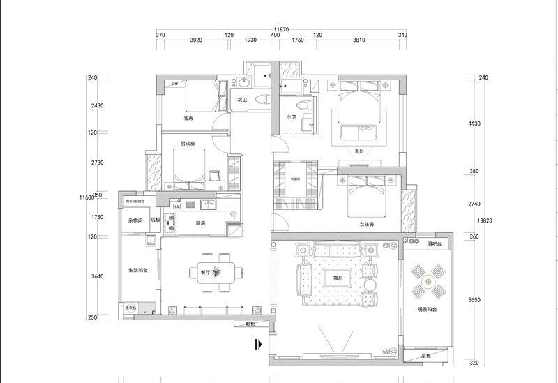
平面布置图
平面布置图
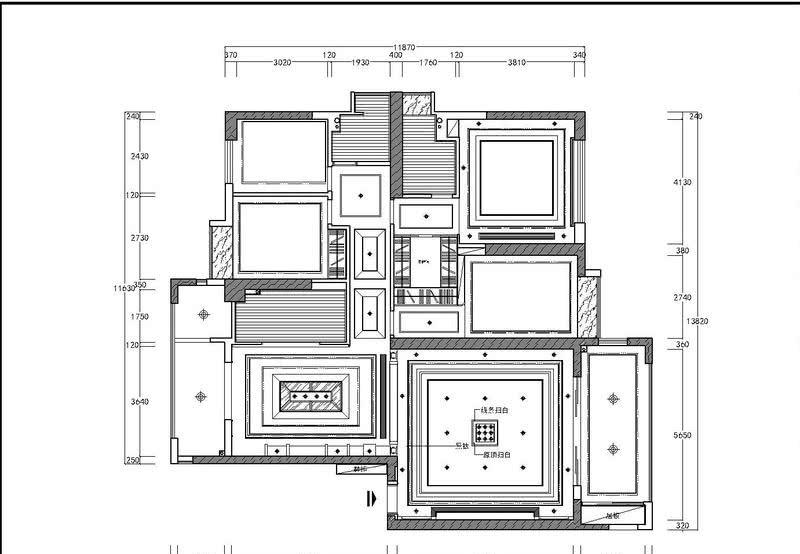
天花设计图
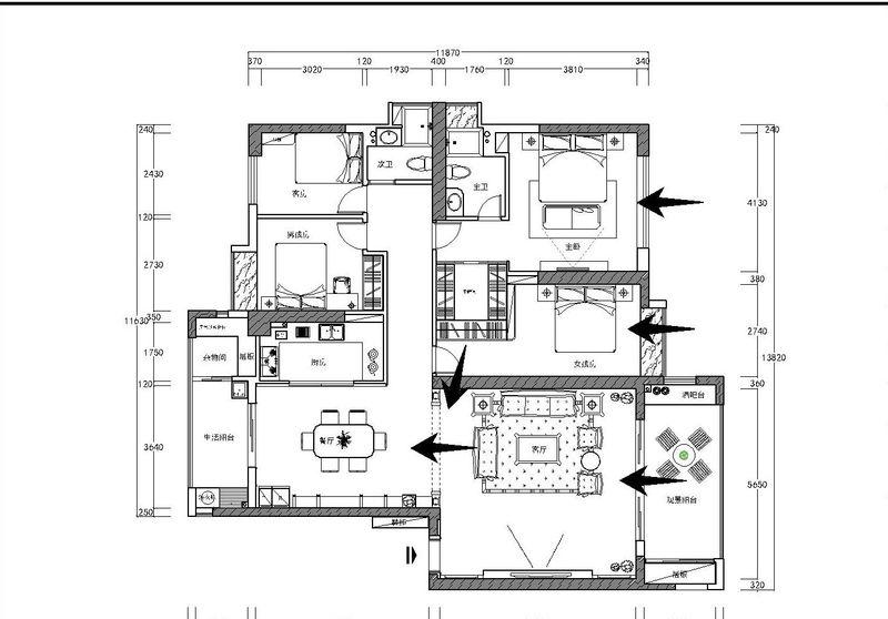
空间立面图
空间立面图
主卫
沙发背景
电视背景
餐厅酒柜
餐厅隐藏门
客餐厅
客厅
餐厅
客服
消息
收藏
下载
最近


































