查看完整案例

收藏

下载
项目名称: 华润置地重庆售楼部软装设计
设计机构: 深圳市东禹设计顾问有限公司
设计总监: 徐庆余
项目地点: 重庆市九龙坡区
竣工时间:2016年
开发商:华润置地(重庆)有限公司
设计初始,设计者便立意统一建筑与室内的设计思路,运用建筑的处理手法来划分室内空间,使各空间相互渗透,渲染出虚实灵动的视觉感受。依此为基础,通过独特的线构成元素,将自然和韵融入现代风潮中,倾力打造出东方优雅与现代融合的空间缩影。
销售中心,其名在售房,其意在传心。钢筋水泥的建筑,其表象都是冷硬,只有其间人的活动,才能传达出层次丰富的柔软与温情。安心其内,如友相会,我们用阳光风景,温言软语,抵御着加速转动的都市节奏,带给空间之内的每一个人归属感,并一起畅想美好未来。
空间在开合、收放中自然地叙事,调动着参观者的情绪,设计师匠心独运,赋予空间灵魂,满足功能的同时最大化地丰富感官体验。正所谓“远则远山含黛,明暗虚实相映“,充分利用得天独厚的湖山美景是本次作品的点睛之笔。山色、湖泊、阳光、空气透过玻璃渗入室内的每一寸空间,相互交融、呼应,如同传统的中国画卷轴山水画,在多维一体的空间中步移景异,呈现出不同角度的美感,令人叹为观止。
项目名称: 重庆融创春晖十里样板房
设计机构: 深圳市东禹设计顾问有限公司
设计总监: 梁霞
项目地点: 重庆
竣工时间:2017年
开发商: 中国融创
以简洁明快的设计风格为主调,简洁和温馨是本案基本特点。本案客厅采用不锈钢的茶几造型和客厅背景墙相呼应,适度的装饰是环境不缺乏时代气息,使人在在空间得到精神和身体的放松,并紧跟着时尚的步伐,也满足的现代人‘混搭’的乐趣。
用古铜线条收边来丰富细节。简练黑色边框,衬以山水画与沉稳大气的中式家具,以现代审美诉求进行视觉营造,去除繁杂与喧嚣,流动却又静美,博大却不乏精细,将丰富、有序的空间演绎出古雅的意境。
灯具、家具及饰品均采用无指纹拉丝香槟金点缀,与哑光胡桃木饰面产生碰撞,将低奢进行到极致。饰品的选择打破了传统习惯,符合国际潮流搭配,不拘一格。装点上充满野趣的绿植装饰,感觉自然和谐却又不失高贵。
售楼处
售楼处
售楼处
售楼处
售楼处
售楼处
售楼处
售楼处
售楼处
售楼处
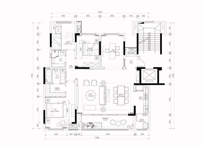
融创钓鱼台A1户型样板房平面图
样板房
样板房
样板房
样板房
样板房
样板房
样板房
样板房
样板房
样板房
样板房
样板房
样板房
样板房
样板房
样板房
融创钓鱼台A1户型样板房平面图
客服
消息
收藏
下载
最近






























