查看完整案例

收藏

下载
工程名称:远洋香奈
设计周期:2015年7月15日—7月30日
完工时间:2016年1月
设计风格:地中海风格
客户造价要求:2000/平米
主要用材:仿古砖、墙纸
此外,家中的墙面处,均运用半穿凿或者全穿凿的方式来塑造室内的景中窗。体现地中海家居的情趣之处。
希腊的白色村庄在碧海蓝天下创造出梦幻感觉,南意大利向日葵花田流淌在阳光下的暖色、法国南部薰衣草飘来的蓝紫色香气、创造出浓厚色彩组合。
非直来直去的家具线条,显得比较自然,因而无论是家具配置还是硬装元素,都形成一种独特的浑圆造型。
挂在白墙的蓝窗,湛蓝的色泽宁静而耀眼,叶式的百叶,更具异域风情。
客厅
玄关
客厅
客餐厅
餐厅
客厅
餐厅
卫生间
厨房
卧室
客厅一角
平面图
顶面图
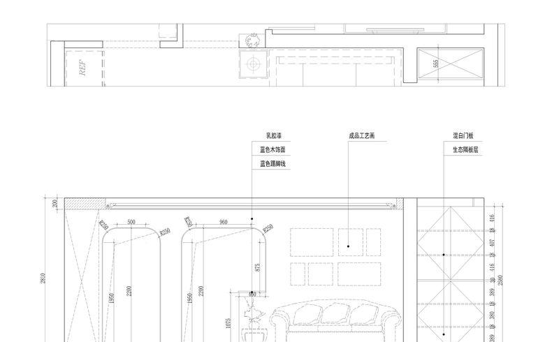
客厅立面图
餐厅立面图
卧室立面图
设计团队:周颖楠 白墀云 毛志武 朱浩杰
客服
消息
收藏
下载
最近



















