查看完整案例

收藏

下载
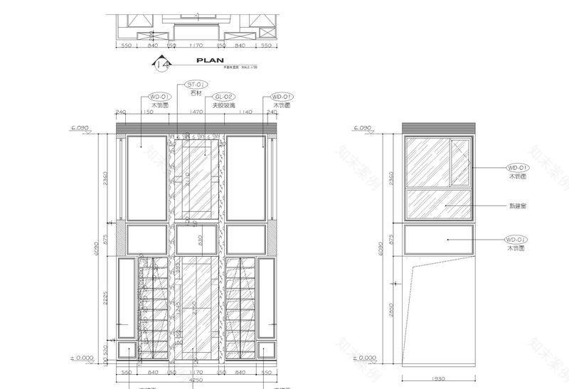
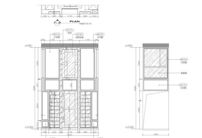
一层酒窖
一层酒窖
地下室客厅
地下室影视厅
一层餐厅
一层起居室
一层过道
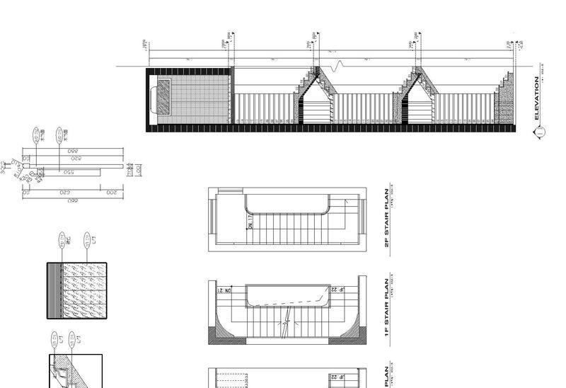
一层楼梯间
二层主卧
二层主卫
二层书房
二层父母房
二层次卧
二层儿童娱乐室
一层平面图
功能定位说明
*1F:一楼以公共和对外区域为主,大客厅餐厅定位上更官方些。餐厅配有西厨和中厨客餐厅之间也有酒廊链接。功能齐全。一楼还配有客房,整个功能完美。
二层平面图
*2F:二楼以私人卧室空间为主,设有一件豪华配置主人卧室,一间次主人卧室,和一间儿童房间每个房间都有自己的卫生间都是独立套房。2间主人卧室可以看见一楼挑空酒廊景观。
*B1:负一楼以娱乐休闲空间为主,有图书廊,休闲看书客厅,健身区域,视听区,茶室,还有功能性的保姆房和洗衣房。
地下室平面图
设计概念
*特点:轻奢主义后现代风格。别墅花园也很重要,可贯穿三个楼面让每个楼面 看出去有不同 层次;楼梯是整个别墅的又一个亮点,着重雕刻。
*材质:木材;石材;玻璃;不锈钢;
*色彩:高调冷灰色和暖灰,冷艳白色做穿插为重点色,植物窗外生气绿色,黑色点缀提神,局部搭配亮色加入活力;暖米灰、红色;
一层餐厅立面
*家具:后现代家具为主、现代创意家居做点缀。
*灯光:泛光勾勒轮廓,重点照明见光不见灯;重点突出灯光效果
一层酒窖立面
一层客厅
一层客厅立面
地下室电梯立面
地下室电梯立面
主创设计师徐文
客服
消息
收藏
下载
最近


























