查看完整案例

收藏

下载
“回怡·家”----绿洲千岛花园别墅设计说明
项目名称:绿洲千岛花园别墅
项目所属:上海航头高夫置业有限公司
项目面积:560平方米
项目地点:鹤立西路183弄
室内设计:上海腾龙设计装潢有限公司
整体软装:上海腾龙设计装潢有限公司
主案设计:王琛
设计助理:朱文霞
机电设计:周健民
软装设计:刘婷
施工经理:耿春桃
设计时间周期:3个月
设计风格:简约美式
业主造价要求:180万
主要装修材料:艺术漆,榆木地板,仿古砖。
本案的业主旅居美国15年,所以设计风格延续了业主在美国的房子,还是现代简约,简洁明亮的家就好。整栋别墅以白色木饰面为基础,为了房子的内空间更敞亮,也为了搭配有鲜亮颜色的软装。空间结构上,保留了一楼客厅的挑空部分,让房子空间更宽松开阔。原有东面的小客房改为了小餐厅,因为这个位置是能看见最大面积花园的地方,而一家4口吃早餐的时候,能在一天的早晨欣赏自家近800平的花园,有个好心情,如此重视早餐环境,也是业主在美国的习惯。如此调整,也让厨房正好一分为二,有个10平方的中厨,也有了近25平方的西厨区,对于常年居住美国的业主,真好符合他们的饮食习惯。其次值得说的是,地下室的家庭电视厅,并没有做成标准影视厅,为了家人可以聚在一起看电视和闲聊。二楼除了3间卧室,留了间近20平的房间,作为两个孩子的共用书房,可以一起做功课,一起做模型游戏,更可以一家人玩棋类游戏。这套设计考虑侧重就是家庭,一家人有更多的空间,能在一起享受家居生活。装饰面上,只做减法,不要任何一个不必要的所谓背景墙,而在软装陈设上做加法。本案的整体色调以绿色系为主调,各种不同层次的绿色,让大房子也有丰富的颜色而更温暖充盈。布艺沙发的选择,让室内环境更加温暖柔和,与客厅全地板的配合,这样的用材搭配就是为了房子不是常用大理石那般冰冷。不是大面积的住宅,必须要用大理石,必须要用木饰面,简单的门套和地板,全木质搭配布艺,更显美式住宅的舒适自在。
客厅
客厅
餐厅
西餐厅
厨房
厨房一角
父母房
主卧
次卧
主卫
空间局部
空间局部
空间局部
一层平面图
地下室平面图
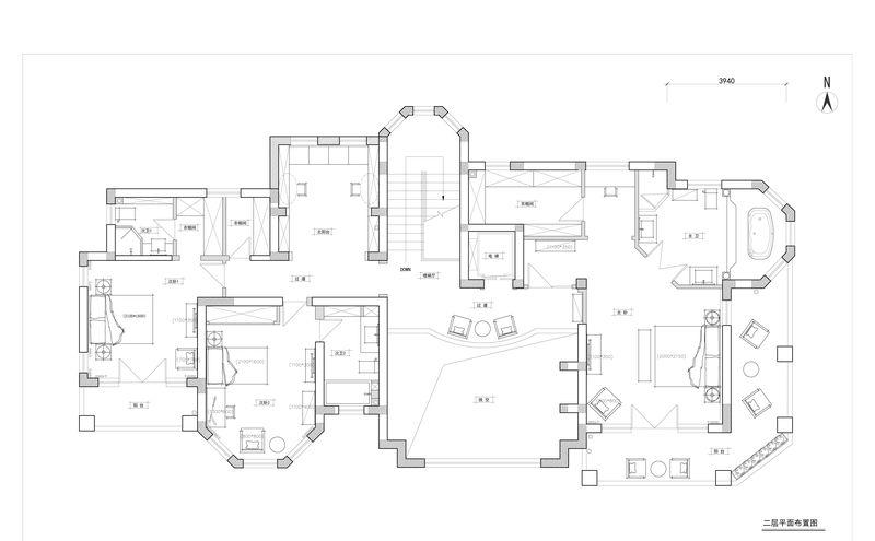
二层平面图
一层客厅立面图
一层立面图
一层门厅立面图
地下室立面图
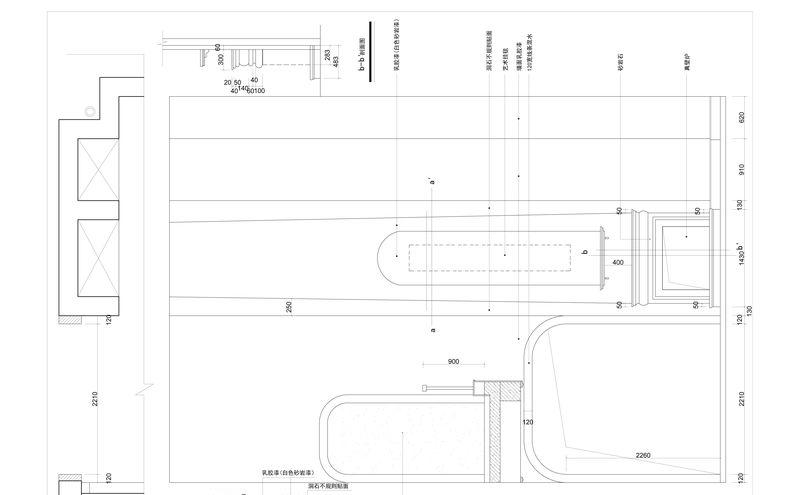
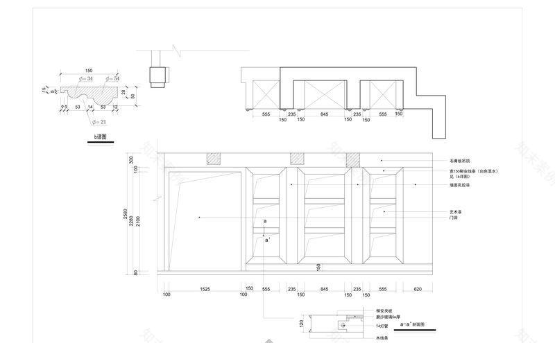
二层主卫立面图
主创设计师王琛
客服
消息
收藏
下载
最近
























