查看完整案例

收藏

下载
“东方安纳西”----达安御廷花园设计说明
项目名称:达安御庭花园
项目所属:上海达安锦城置业有限公司
项目面积:350平方米
项目地点:崇明城桥镇玉环路108号
室内设计:上海腾龙设计装潢有限公司
整体软装:上海腾龙设计装潢有限公司
主案设计:王琛
设计助理:吕金梅
机电设计:周健民
软装设计:刘婷
施工经理:傅俊
设计时间周期:12个月
设计风格:法式乡村
业主造价要求:250万
主要装修材料:白蜡木开放漆,大理石,洞石等。
本案由于位于上海的生态岛崇明,得天独厚的地理环境让设计师希望有舒适安逸的氛围。虽然业主在风格讨论后,选择了法式风格。但怎样的把控颜色和材料,让经典的法式元素能溶于传统中式的环境中。于是,摈弃了传统的大理石壁炉,运用了不抛光的白洞石来让壁炉有时间质感。整个项目的木饰面,是白蜡木做半开放漆,木纹不如橡木的明显,却隐约可见,让木饰面上墙后,不那么陈旧,又尽显原木料的质朴敦实。接下来,说下空间的修改。一楼原有的卫生间被取消了,加宽了楼梯宽度,同时让厨房方正开阔。基于整套房子居住的考虑,使用率最高的厨房,成为了主要考虑的重点,因此牺牲了一楼的客卫生间,仅保留了地下室的卫生间。二楼三楼整楼面各做了一个大套房,二楼为女儿的套房是搭建了原一楼挑空的客厅部分,让二楼套房的每个功能区都拥有了舒适的空间。三楼是主卧室套房,利用了北阳台补充原来狭小的衣帽间。整栋别墅300平,设计考虑以主人自用空间为重点,所以不像以往的别墅考虑到很多接待朋友聚会的功能。也因此,每个功能空间都宽敞舒适,整栋房子没有小面积的房间。次案的软装色条以蓝色系为主基调,普蓝庄重与典雅,灰蓝纯净而华丽。由于主人的收藏品多位国画,所以软装设计的重点是法式古典和中式元素的混搭处理。客厅沙发选择了意大利设计师的原创作品,但此作品的细节雕花是由中式家具的改良而来。餐桌则是经典老上海元素的桌椅,亚振的经典款家具。以这些家具的混搭,创建一个在中国生态岛屿上的法式住宅。
一层客厅
一层玄关
一层中厅
一层餐厅
一层厨房
一层楼梯间
地下室影视厅
地下室茶室
二层空间一角
二层次卧
二层书房
三层主卧
三层主卫
三层书房
一层平面图
二层平面图
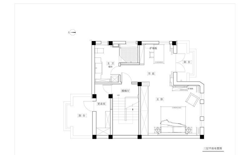
三层平面图
地下室平面图
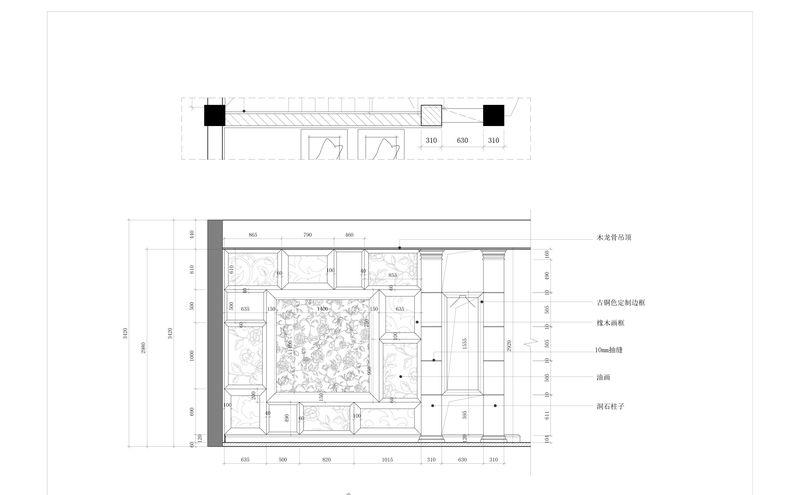
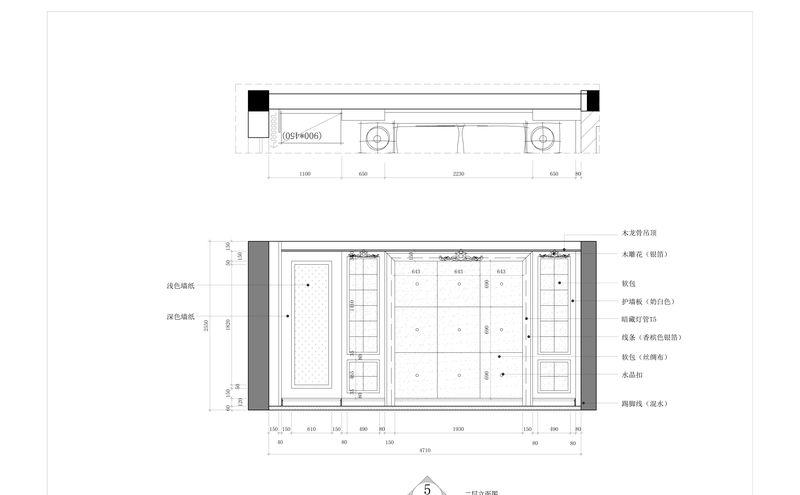
一层立面图
一层立面图
一层立面图
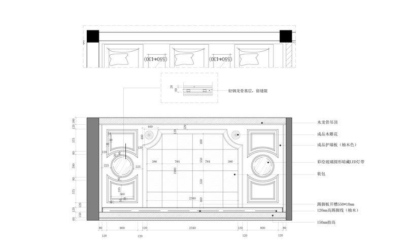
二层立面图
二层立面图
三层立面图
地下室立面图
地下室立面图
地下室立面图
主创设计师王琛
客服
消息
收藏
下载
最近






























