查看完整案例

收藏

下载
《乱局求变 虚实多少间》
瑞南会所
设计周期:2016年3月18日—2016年4月8日
完工时间:2016/11。
设计风格:新中式风格
设计面积:500平方
客户造价要求:6000/平米
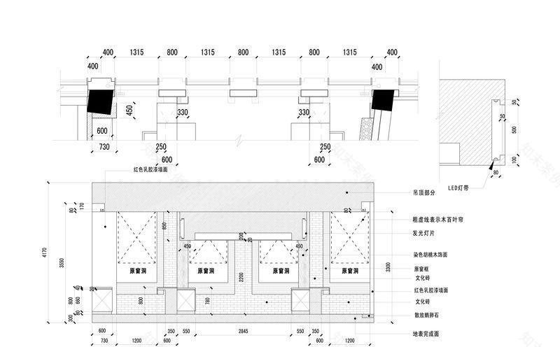
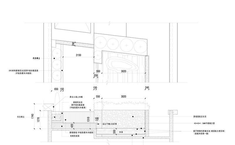
主要用材:胡桃木、中国黑大理石、竹编壁纸,镜钢等。
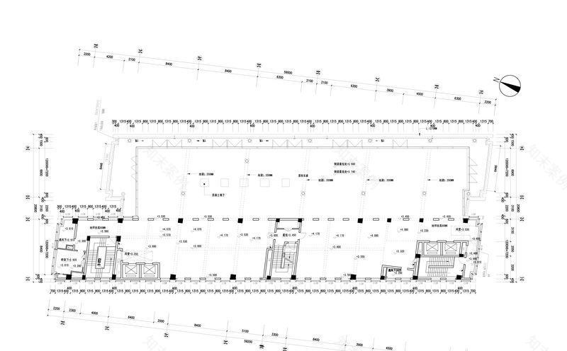
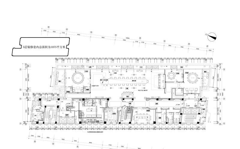
设计理念:本案系企业内部接待的多用途会所,主要以餐会、聚会为主。在完全满足业主对功能区规划的前提下,最大的挑战在于对建筑主体框架及柱网呈平行四边形结构的解析化解。整个会所的基调风格定位于新中式,然而中式风格特别重要的一点,就是以对称美为主旨内蕴的,所以在设计布局中,就势把开放型中庭内最凌乱的三根结构钢柱,与新加的装饰性钢架柱体,作巧妙地组合,呈现了一道独特的叠加式中式拱券柱廊,廊内置一席超大尺度的原木长台,此区域集party、茶茗、酒会等多用途功能,此构思还巧妙地应和了原中庭钢架玻璃结构所固有的半户外的氛围特质,用最少的笔墨,挖掘出原结构空间最大的一抹重彩。中庭两端的不规则钢柱各自融合到包房墙体以及开放式玻璃酒窖两侧的装饰柱内。至此,寥寥几笔便使得会所的主体空间重点突出,情境相融,加上与之配合的大面积黑色石材地面,单边长墙上竖向大尺度的发光面结构,虚实相间的重墨与留白,不多也不少地刚刚好,给此案简中的风格意境,稳稳地接到了地气!此后的设计构思的推进,秉承先前的原则加上了中国红的元素,无论是红柱身还是红灯罩以及酒窖红墙,同色不同度,点睛之笔所呈!
客服
消息
收藏
下载
最近































