知末
知末
创作上传
VIP
收藏下载
登录 | 注册有礼

平江怡景

2017/08/28 12:36:36
查看完整案例
微信扫一扫
收藏
下载
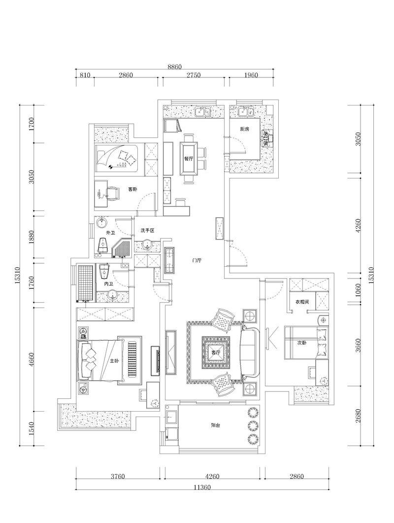
项目名称:平江怡景
设计公司:江苏红蚂蚁装饰设计工程有限公司
设计师:高铭
设计风格:美式
项目面积:150㎡
标注【作品原创,抄袭必究】
设计理念:本案从原有的建筑结构上着眼,运用色彩与材质丰富了层次感和空间感,为业主带来了时尚鲜明的个性生活。在空间选材上,多选用现代的材料与工艺,呈现内敛而高雅的生活气质,让美式的优雅古典与现代风格相互融合。因此站立于此空间中,可以从中感受到现代中透着美式经典的光芒,又能在古典中彰显时尚的色彩。
平江怡景-7
平江怡景-8
平江怡景-9
平江怡景-10
平江怡景-11
平江怡景-12
平江怡景-13
平江怡景-14
平江怡景-15
平江怡景-16
平江怡景-17
平江怡景-18
平江怡景-19
平江怡景-20
平江怡景-21
平江怡景-22
平江怡景-23
平江怡景-24
南京喵熊网络科技有限公司 苏ICP备18050492号-4知末 © 2018—2020 . All photos and trademark graphics are copyrighted by their owners.增值电信业务经营许可证(ICP)苏B2-20201444苏公网安备 32011302321234号
客服
消息
收藏
下载
最近