查看完整案例

收藏

下载
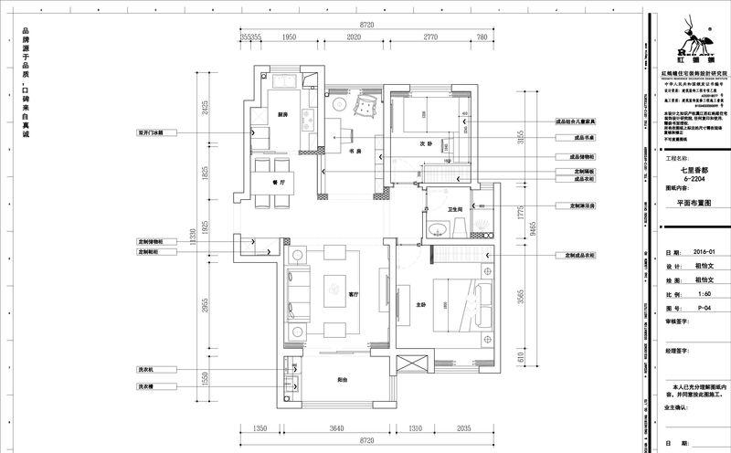
红蚂蚁创意中心经典案例:七里香都
作品名称:暖暖的幸福
本案面积:平层 103平方
本案风格:美式田园
本案设计师:创意中心主案设计师祖怡文
标注【作品原创,抄袭必究】
业主是对即将步入幸福婚姻殿堂的小两口,比较喜欢温馨的美式风格。房子的面积一百平左右,需要一个书房,客卧和一间主卧室。由于房屋本身的建筑结构在进门处整体看过去比较局促,正入眼帘的是电视背景北边一根突出来的结构柱。所以我在设计电视背景的时候结合美式田园的风格特点,在区域分割上在客厅的北边加了垭口,和电视背景上的弧度造型有一个呼应,顶上的假梁设计师比较出彩的。新婚小夫妻本身结婚就要一笔比较大的开销,而且他们信任我们红蚂蚁,选择我们红蚂蚁,把新家交给我们装修。我当时心里的想法就是不能辜负他们的信任。新婚夫妻势必不久的将来要添小宝宝,所以在顶面的假梁的材质上我是考虑了多种方案1.成品木饰面,优点美观,档次高,缺点贵。2.饰面板做优点便宜,缺点不精致,环保度也不如前者3,艺术涂料,优点便宜,全部过程没有一点胶水,基层还不要用到木工板,我发现用在我的这个客户家里太合适了!在设计书房的时候,由于格局的改造中间有一根横在中间的梁。不美观又影响层高,如果用木饰面去包这根梁那么层高更低,艺术涂料直接涂上,经济又美观,最最重要的是环保。开放式的书房使得客厅、餐厅、书房都在一个空间里,美观又显得空间大。看了实景照片的人都不相信这面积只有103平。设计唯有想客户所想,再添一些惊喜,才能有让人眼前一亮的完整的作品和一个住进去就能收获幸福的家。
客服
消息
收藏
下载
最近

















