查看完整案例

收藏

下载
项目名称:Penhal Cafe畔河咖啡馆
项目地址:上海
项目面积:130平米
项目完成时间:2016年12月
设计单位:上海尚窗室内设计有限公司
设计师:李秀儿 阮彦恺
设计说明:
本案是一个以高级定制服装文化为主题的咖啡馆,高级定制品牌“Chester Barrie”来自英国萨维尔街,萨维尔街是英伦贵族的代名词,本案的风格采用英伦风格与现代感混搭,
经典与时髦、沉稳与细腻并存,让英伦风更加年轻时尚。
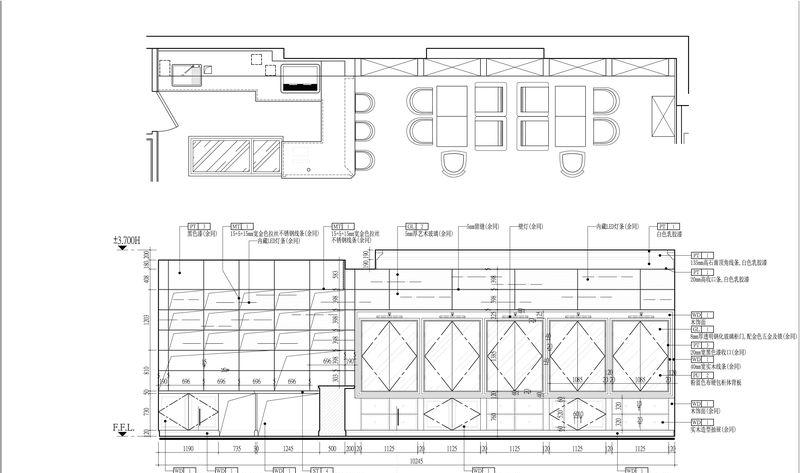
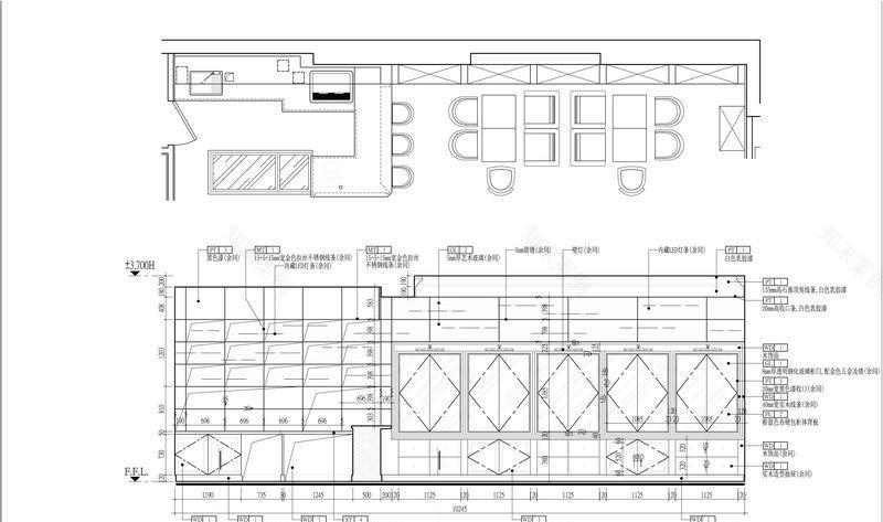
本案虽然面积不大,但通过设计师巧妙的规划,各功能区既独立,又能相融合。咖啡厅进门区域做了一个假阳光房,黑色铁艺玻璃屏风做为隔断,假窗台做成咖啡厅的卡座,墙上贴满永生植物。进门第一视角是咖啡区整面墙的服装主题展柜,这是咖啡与高级定制文化最重要的结合点 。精致的天花石膏线条、樱桃木柜子、金色拉丝不锈钢、黑色、布纹玻璃、鱼骨拼地板、大理石马赛克,加上高低错落有致、色彩和质感搭配丰富的软装家具,空间显得非常精致,能让顾客讲究地品味咖啡的同时细细品味空间的细腻。
门面设计部分受物业限制颇多,原有物业雨棚和柱子都不能动。门面需要彰显英伦格调,体现高级定制品牌“Chester Barrie”的DNA。设计师采用黑色加金色,分割精致的黑色铁框玻璃,加上一些欧式线板的装饰,古典中带点酷酷的感觉。原建筑柱子上巧妙地设计了外挂的装饰和壁灯。原有铝板雨棚生硬呆板,设计师将咖啡色布雨棚设计成没有顶,遮挡在原有铝板雨棚上,完全改变了生硬的感觉,巧妙解决物业限制。
Project Name: Penhal Cafe
Project location: Shanghai
Project area: 130 square meters
Project completion time: 2016.12
Design unit: Shanghai Window Design Co., Ltd
Designer: Li Xiuer Ruan Yankai
Design description:
The design is aimed at the café themed the haute douture clothing culture. The haute douture brand "Chester Barrie" comes from the Savile Street in United Kingdom which reminds people of the British aristocracy. The design is integrated with the British style and modern style, classic style and fashionable style and calmness and delicacy at the same time for a mix-and-match so that the British style can make you look younger and fashionable.
In spite of a small area of the café as designed, its functional areas through the designer’s wonderful design are independent and also integrated with each other. At the entrance of the café, there is a mimic sunlight room with the black iron glass screen as a partition and a mimic balcony as the car seats. The walls are decorated with immortal plants. By this way, what firstly comes into the customers’ view is the showcase with the clothing theme on the whole wall in the coffee area. This point plays an important role in linking coffee and the haute douture culture. Meanwhile, the exquisite gypsum streaks on the ceilings, cherry wood cabinet, golden wiredrawing stainless steel, black fabric surface glass, fishbone floors, marble mosaic, coupled with the well-proportioned soft decorated furniture with various colors and good texture intrigue customers to enjoy delicacy in the area and get immersed in the delicious taste of the coffee as well.
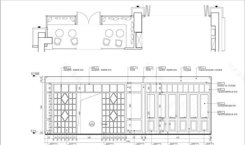
In the design, the area boasting good privacy for custom tailoring in clothing design is separated from the cafe drinking area so that the culture for custom tailoring in clothing design can be displayed in the café like the museum. The whole shop is laid with the café drinking area as the center. The left side is the area with good privacy for custom tailoring in men’s clothing design adopts the classic British style with the view of providing service for customers in negotiation. The middle area in the café is open mixed with both of the modern and classic style. The whole folding door can be opened so as to bring an integration between the indoor area and outdoor area. The style remains to the bar area which ends up in it to turn to target at modern fashion. The black lacquered panel and golden wiredrawing stainless bar plus the fabric surface glass with less lamps within as well as the well-proportioned design bring a sense of fashion for feasting your eyes. Meanwhile, this will not produce too much bright to ruin the whole style. The women’s area on the left side is given to the modern style with a combined use of metal, marble, wallpaper and pink soft decoration. To this end, the designers would like to highlight the brand style for simple and capable and feminine women.
Facade is designed limited by the property restrictions and the original property canopy and pillars are not allowed to be removed. For the sake of advanced custom brand "Chester Barrie" DNA, the façade needs to highlight the British style. Designers work on to split the exquisite black iron frame glass in black color and golden color. Besides, some European-style boards are adopted for decoration so that customers can be seized with a classical and cool feeling. In addition, the original building pillars are designed with hanging decorations and wall lamps. The original aluminum rain canopy is dull and stiff, so the designers remove the roof of the brown cloth shed to cover the original aluminum canopy so that the rigidness and stiffness can be ridded of completely which just steers clear of the property restrictions in an ingenious manner.
客服
消息
收藏
下载
最近






















