查看完整案例

收藏

下载
這麼多年,隱約還記得的歌曲《快樂天堂》、《童年》,甚至是那幾本充滿想像的故事《鏡花緣》、《愛麗絲夢遊仙境》、《小飛俠》,兒時的記憶總是最深刻。啟蒙期,孩子抱著小毯子與玩偶,專注聆聽、閱讀有聲書、繪本、口耳相傳的故事,小小腦袋裡,繚繞的都是其中的情境與角色,無法自拔,而進入設計師用魔法為親子打造的夢幻天堂,更將是一輩子都忘卻不了的空間觸發經驗!
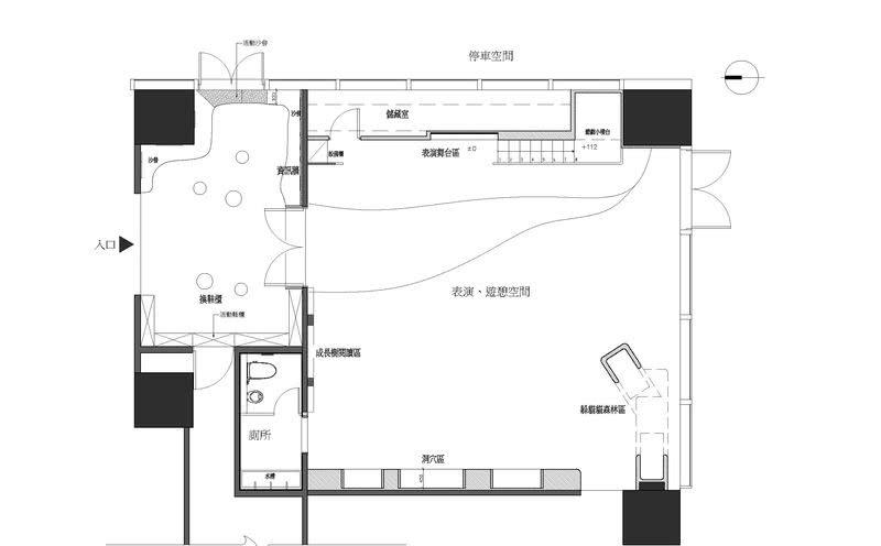
輕淡藍色、白色線條所組成的樹幹剪影壁面,溫柔的擁抱孩子入內,童趣動物壁貼,熱情的引領著小朋友,進入屬於他們的奇幻國度! 強烈風格的甜蜜蜜蜂巢鞋櫃與圓形泡泡軟墊,一格一圈、大小高低、凹凸與實虛變化各不同,刺激著孩子的視覺、觸覺感官,認識形狀,啟發感受,曲線的藍色布沙發讓空間多了幾分隨性與層次。
一系列的色彩計畫與空間主題的鋪成,與自然灑落的陽光、微風,成功營造出藍天、白雲、綠草地的清新森林感,放大了人們對於空間的尺度想像。動線端點是一組以大樹的意象長出枝幹的粗大斜撐結構,從地面向上生長到天花,雪白天花如樹冠,保護著樹下的生命,使孩子感到安心。樹幹下甚至留設了如兔子窩的小樹洞,讓孩子可以發揮想像力,和想像中的動物們一起分享心裡的小祕密。空間中的另一面牆,則是形狀較為具象的大樹壁櫃書架,與特製的壁燈結合,書本如大樹上豐盛累累的果實,取一本書好比大口咬了一顆夢想果實,品嘗知識的香甜,對未來世界的認識與想像期待,從此發芽。
藍白色剪影壁體串連了抽象與具體的兩棵大樹,壁體中有著亮暗的光源對比性空間,促發孩子對環境的敏銳度。黑暗的小洞穴中,埋燈與鏡面營造出的點點星光,是設計師精心為孩子安排的大大宇宙。依照兒童的人體尺度設計,大人們必須彎下身來,回到孩子的角度一起來心靈對話、自我探索、相互了解,翱翔在這片星海,藏著柔軟而璀璨的慈愛。
一千零一個說不完的童話故事,伴隨著一年一年成長的生日會,父母陪著孩子在這個空間裡,度過珍貴而難忘的童年時光。穿過小舞台的雲洞、風洞,踩上階梯的表演空間,歡樂的音樂聲,台上的寶貝們像星星一樣耀眼,看著心頭上的寶貝們在舞台上分享,開心地大笑、興奮的表演,也許哪天就茁壯的像空間中的大樹一樣高,開心的長大,是父母們心甘情願付出而反饋的無價報酬。
客服
消息
收藏
下载
最近













