查看完整案例

收藏

下载
接待厅照片墙
接待厅
卡座区
卡座区
散座区
散座区
走廊
包间三
包间二
主创设计师
项目地址:四川省成都市天府新区湖畔路366号
项目面积:1350平米
设计单位:猫眼室内设计有限公司
主创设计师:蒙芽
软装设计师:黄艳
设计助理:杜春明、易成文、卞蓉
设计材料:金色不锈钢、木地板、花砖、亚克力、彩色乳胶漆、艺术玻璃
该项目所处位置,类似于上海的浦东新区,周边集结了世界500强企业,及70、80后这些社会的中坚力量人群,这也将是该项目的主要客户群。项目位于湖边,傍晚时分,坐在湖边的,静静的品一杯下午茶,或者约两三好友,或者商务接待,都是非常理想的环境。为了呼应这样的美景,满足客群的需要,我们想把这个餐厅营造成一个年轻人喜欢的时尚、国际、开放的中餐厅。
餐厅原本只有700平米的单层空间,板到板5800,做一层有点浪费,做两层有点矮,客户希望能多一些功能空间和就餐人数。因此,我们将局部搭了个夹层,把包间及部分散座和厨房分布到夹层上去。这样,既增加了使用空间,也丰富了空间的构成层次,有高有低,有紧有松,张弛有度,使空间趣味盎然。
我们将黑、白、红、金四种色彩定为空间的主色调,通过强烈的色彩对比、复古的墙板纹样及时尚的黑白地面,营造出时尚、明快、幽雅的就餐环境。既能举办浪漫的湖边婚礼,又能举办各种类型的party,也能满足平时休闲、就餐的使用功能。让空间更具有包容性。
多功能厅没有像传统多能厅那样无趣庄重。这个空间没有强烈的色彩对比,而是用了白色作为主色调。用金色镜面不锈钢板做成一块块折纸状,悬挂在暴露式的天花上,形成一个Z字型,折射出各种水晶吊灯的造型,光感。营造出浪漫且时尚的多功能厅。满足不同功能使用,也能营造出别具一格的环境氛围。
主创设计师:蒙芽
猫眼设计创始人、设计总监;
CIID中国建筑学会室内设计分会第六届委员;
由于从事商业空间设计多年,有着丰富的设计经验。她对商业空间设计的理解是:所有商业空间设计都应该是精准定位,服务于人,满足运营的前提下,再把空间做得漂亮,做得有个性。这样的空间才有灵魂;专业从事餐饮、酒店、地产的空间设计及品牌策划。
建筑外观
建筑外观
一楼平面
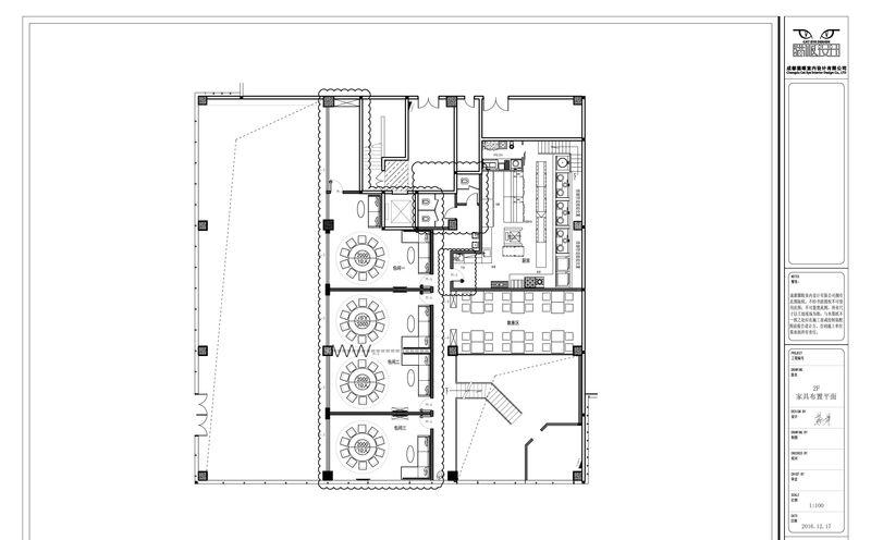
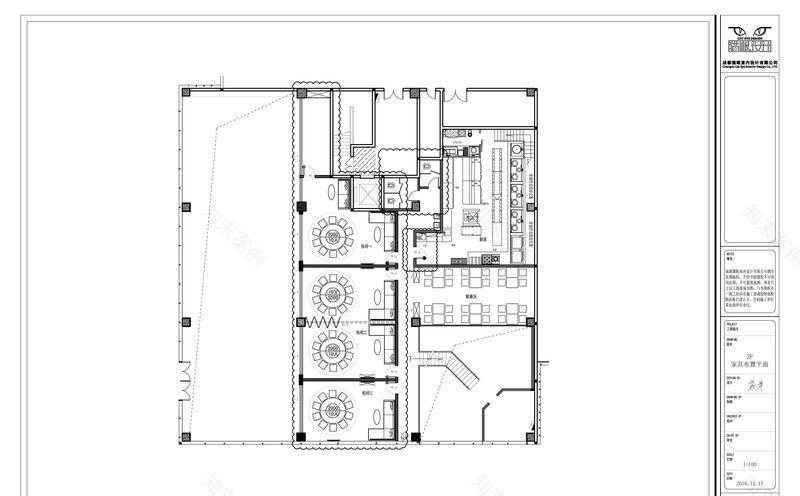
二楼平面
多功能厅
多功能厅
服务区
楼梯
接待厅
客服
消息
收藏
下载
最近





















