查看完整案例

收藏

下载
鏡像延展 交迭空間的人文時尚
居家面貌演繹屋主的品味生活,本案以「當代構思」揉合「人文語彙」,並透過複合性材質的堆砌,利用反射及穿透的虛實變化,展演場域的內涵層次,淬鍊不凡的美學況味,也為屋主創造豐富的仰望角度。
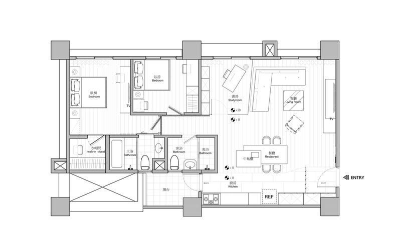
推開門扉,在架構與動線上以開闊形式呈現,將客廳與餐廚區規劃在同一條軸線,並用大框架營造空間的流暢感,讓人充分感受開放寬敞的氣度,成功打造出夫妻希冀的「國外感、度假宅」。而立面及視覺端景的表現,與公共場域比鄰的書房及客浴,分以玻璃及復古鏡來鋪述,藉由材質所呈現的特性,延伸並映照出空間品味與質感。
悉心擘劃空間的線與面,選擇穿透玻璃取代書房實牆,復古鏡作為餐廳主牆,讓空間擁有更寬廣、放大的視野。
藉由格柵造形及可調式的屏風,化解開門見灶的風水問題,也帶給賓客穿透、隱喻的視覺效果。
電視牆以質樸況味的文化石來鋪陳,點綴上藝術掛畫及海報,呈現濃濃的休閒氛圍。
透過大面開窗及玻璃隔間設計,將窗外的暖陽自然引入,也渲染滿室的幸福溫度。
慕澤設計團隊以開放視角鋪述空間的內涵層次,並挹注當代時尚語彙,滿足層峰人士希冀的空間藍圖。
餐廳上方,購置兩盞現代感吊燈,搭配澄淨而透明的餐椅,形塑充滿現代感的餐敘空間。
揉入屬於屋主的夢想藍圖,運用簡潔的線面關係與複合性材質,構築美型且機能充足的空間。
藉由燈飾、軟件與家具的配置,細膩呈現屋主的興趣與品味,並在鏽蝕感的復古鏡的映照下,烘托出空間中的人文底蘊。
公共場域的視覺端景,分別以復古鏡面牆與玻璃屋書房演繹,其虛實變化、重疊與延伸的表現,饒富趣味與層次感。
玻璃與鏡面的交織演繹,呈現空間中的虛實想像,更與光影交織出場域之美。
精準的內裝搭配及選材運用,讓視覺有連綿不絕的驚喜,更讓空間饒富無限的想像。
客服
消息
收藏
下载
最近


















