查看完整案例

收藏

下载
项目名称:罗澜假日酒店
项目地点:新疆奎屯
建筑面积:5600㎡
主要材料:爵士白大理石,原木色做旧实木,透光灯片,青砖青瓦,黑色花岗岩,藤编壁纸,铜条,米色拼花砖
设计公司:大木叙品设计
主案设计:蒋国兴
协助设计:韩小伟 妥文奎 孟雪琴 陶会会 李子青 张显艳
设计监理:叙品设计监理
空间陈设:叙品陈设(品三品陈设配套)
设计说明:陶会会
标 注:【作品原创 抄袭必究】
酒店分为很多种,有度假酒店,主题酒店,商务酒店等等,本案的设计初衷是想打造一个与众不同的酒店,让住进去的人感受到一种老上海与现代交融的文化。
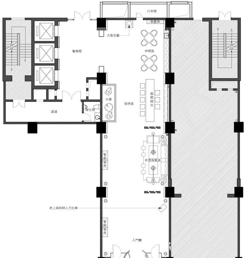
在1F进门区,设计了一整面墙的老上海时期的壁画,颜色简化成黑白灰带着淡淡的黄色,淡化了老上海的浓墨艳妆,却在壁画前面做了几个柱子,用的是做旧的咖啡色实木,壁画前面是一辆老上海时期随处可见的人力车,对面是两个成品装饰柜,也是做旧的咖啡实木的颜色,配上简单的中式线条,装饰柜上放几个叠起来的箩筐,一个老旧的装饰罐子,一种浓厚的老上海气息迎面而来。
进去等候区是实木中式的沙发,颜色做的旧旧的,没有用很重的颜色来诠释中式的厚重感,而是在沙发后面做了一排实木吊柜,放几个装饰品,墙面和沙发区的天花用镜子做装饰,把这装饰物通过镜子反射一次,层次分明。沙发上配上大红色的靠垫,给空间加了一些跳跃性的装饰效果。
等候区的对面也是装饰高柜,墙面用木线条做成镜框,让空间消弱了中式的严谨和厚重,多了现代感。红色和蓝色的复古吊灯起到画龙点睛的装饰效果。
服务台没有采用现代的高高的形式,也是用几个装饰的矮柜拼在一起,上面压一整块的清玻,桌面上摆放陶罐插花作为装饰。后面是用金属镂空做的地图装饰墙,灯光均匀的打在墙面上,很有金属质感。对面是一个不大的水景,层叠的石头上是几个残缺的土陶罐,潺潺的水声给空间增加了勃勃生机,水景后面的墙体是用黑色的瓦片做成,层层叠叠,交错有秩,被水浸湿的地方颜色更深一点,深浅交错,更显得年代感很强。
1F的整个空间用黑色大理石地面连贯起来,顶部用做旧木饰面的斜屋顶,一圈灯带发着淡黄色的光,映射在光亮的地面上,也是一种装饰景观。
1F电梯厅那里用的黑色拉丝不锈钢条做一圈边框,墙面则用原木色花格做装饰,上下都有灯光,让花格和阴影相互错叠。
1F卫生间用爵士白大理石做成,干干净净的颜色,配上水墨画做点缀,镜子也是用圆形,有点像是老上海年代的铜镜,洗手台上摆放一个土陶罐,插上几只干枝,禅意淡淡。
5F餐厅用木饰面整体装饰,展示台也用爵士白做成,摆放几个颜色鲜艳的陶罐,让就餐空间干净整洁,又不失雅趣。
9F的标准间在设计上采用旧上海的感觉,床头背景用藏青色的软包,背景也跟1F大厅一样,用老上海的壁画,颜色也是淡淡的。对面的电视背景墙用小条砖装饰,做旧原木色的电视柜,细细的木线条,使得空间的中式韵味显得秀气雅致。标准间的卫生间用米色的拼花小砖整体铺贴,空间温馨明亮。跟其他空间相同的是都有一个小小的白色罐子,插几只淡淡的干花,洁白的毛巾,洁白的洗手台,很有禅意。
9F的电梯厅也连续采用这种风格,只是在颜色上用的更干净明亮,米色的大理石,黑白的水墨画,原木色的沙发,整体给人一种现代中式的画风。
9F的过道和会议室都用了米色藤编壁纸,细细的铜质压条,把空间用线条拉长,分割,素雅的色彩,配上做旧的木色家具,白色的落地灯,一大捧的鲜花,空间淡雅又温馨,但是还是被设计师把控在现代中式的氛围中。
10F套房里换了一种感觉,用老上海的元素——丝绸来点缀空间,在床头背景上用丝绸缠绕在木板上作为装饰,各种不同的色彩,配上彩色的地毯,白色的床品。跟9F的套房完全不同的感觉,也让整个酒店空间不拘泥于一种色彩。靠垫用明亮的黄色,更鲜明活泼一些。
酒店大空间被设计师营造出现代中式,又带着老上海的元素,整体的氛围统一,又在其中的小空间里穿插其他跳跃式的颜色做点缀,整个案例显得安静大气,又不失雅致活泼。
客服
消息
收藏
下载
最近












