查看完整案例

收藏

下载
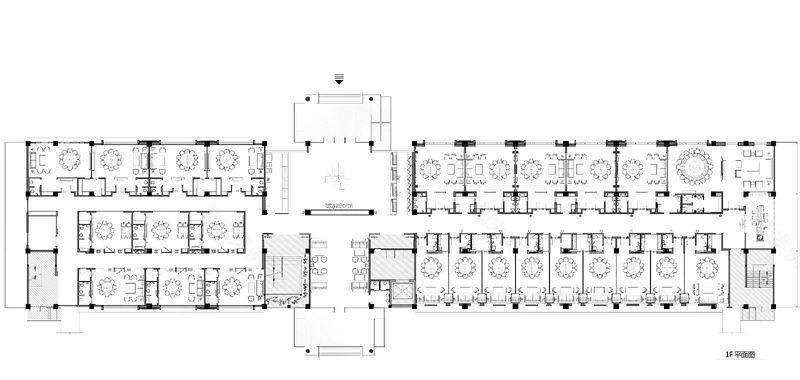
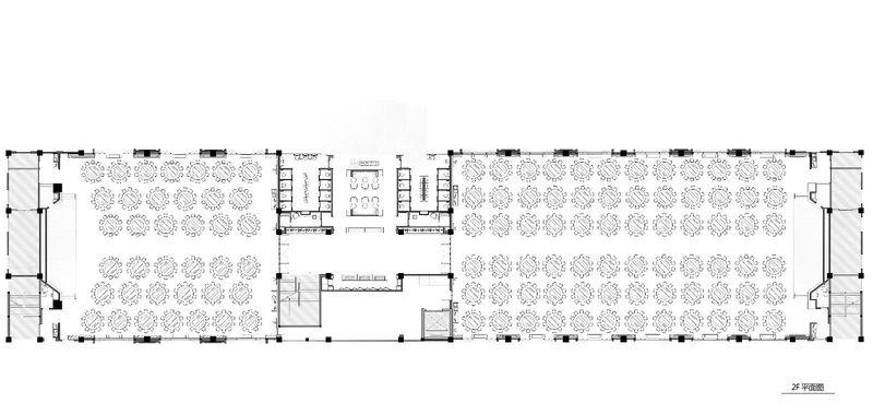
韩上楼项目位于广东千年古城潮州市湘桥区凤凰洲岛上,岛上自然景色是潮州古城八大景色之一,清静幽雅,气候宜人。设计师充分利用了岛上的自然风光,最大限度地使室外景色与室内相呼应,将潮汕人独特的美食文化与空间设计相结合,塑造了“色香味俱全”的餐饮空间。
低调方显奢华
设计师从中式美学的底蕴与现代材质的运用寻找平衡点
通过材质与软装表达对中式美学的理解
虚实结合,非浓非淡
展现现代与东方古典元素融合的思考
传统文化的继承与重新挖掘
传统文化经过岁月的沉淀和历史的洗礼,仍旧在静谧中散发出迷人的魅力
对传统的延续,不止是符号
现代气息和东方文化氛围的融合
如何做到古为今用更为重要
东方文化也能表现极致奢华的视觉
而与众不同的是,同时也能兼容“低调内敛”的文化感受
“食衣住行”
美渗透在生活的点点滴滴
食物也是一种美学
品尝美食,悄然成为我们生活的乐趣
为人们品尝美食创造更加舒适优雅的空间
成为我们更直接表达享受生活、享受设计的方式
客服
消息
收藏
下载
最近





























