查看完整案例

收藏

下载
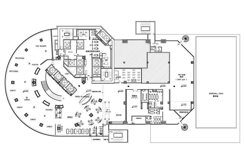
本案是香港上市公司EPINT集团本着;集运动健康、复康理疗、美学美容于一身而建设的一个多元化综合会所,是大陆地区的第一旗舰总店,位于罗湖CBD黄金区域发展大厦6至7楼占地7500平米,拥有空中花园泳池、篮球场、网球场及医疗美容等设施。
因项目所处地段繁华寸土千金,如何快速呈现出鲜明个性会所是本案设计的第一任务。盈筑空间设计团队借鉴国外的设计手法,通过不同材质的颜色搭配,光影冷暖的碰撞,将会所应具有的科技、动感的特性淋漓尽致的体现出来,通观全案,所选材料极其普通,颜色上主要以蓝、白、黑,局部跳以其他颜色点缀,活跃了气氛,置身其中,一场蓝色魅惑迎面而来。。。
客服
消息
收藏
下载
最近

























