查看完整案例

收藏

下载
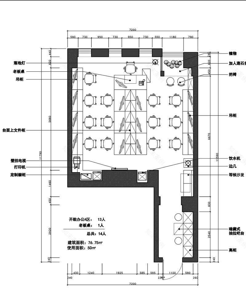
此项目以独立办公室项目中,工位数最大化为标准,实现了空间中,满负荷的工位数,并且解决了,门厅走到处的狭长空间的不可利用性,设计了每个办公人员的衣物储物空间,和小的休闲吧,满足人员的就餐和签收快递的功能,并且还设计了单独的等候区,和员工的临时休闲区,此空间没有单独的前厅LOGO,我们将LOGO和企业的文化,放置沙发的正对面墙壁上,这样对月等候的人员也是对公司的一个宣传作用,并且此沙发有一个折叠的功能,可以满足员工在午休时间的休息功能。并且打破的原有的办公简单的隔断问题,我们将文件柜进行了设计,进行了及遮挡又储物的功能,并且在办公区的会议墙面上增加了一个电视的功能,满足于集体开会的需求。并且在整个空间内还有独立的老板位、和水吧区,满足了不同的功能空间。大大的利用小空间的大设计。
门厅
开放办公区
开放办公区
门厅
开放办公区
等候区特写
开放办公区特写
特写
开放办公区
开放办公区
开放办公区
开放办公区
老板位
老板位
老板位
老板位
开放办公区
老板位
老板位
开放办公区特写
开放办公区
开放办公区
开放办公区
开放办公区
等候区
老板位
老板位
老板位
开放办公区
客服
消息
收藏
下载
最近
































