查看完整案例

收藏

下载
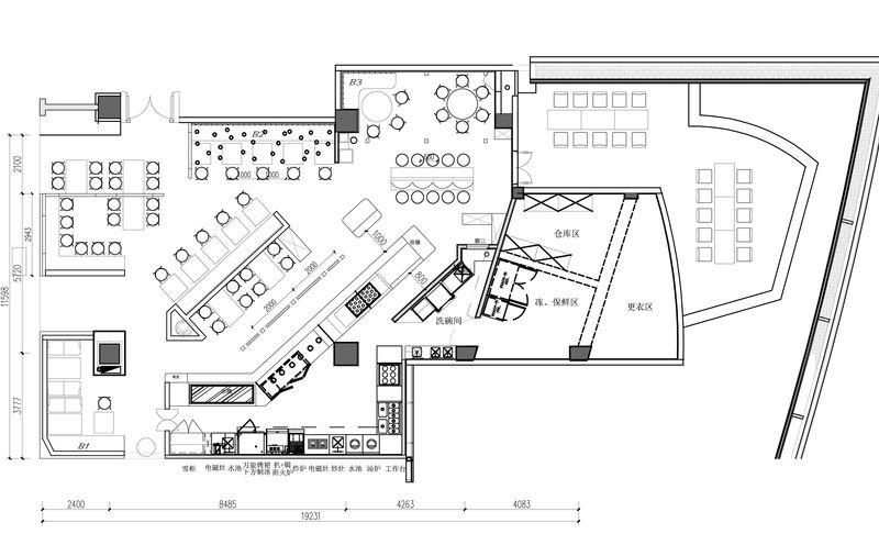
项目名称:苏州市新光天地粉越西贡
项目地址:苏州市吴中区新光天地
项目类型:餐饮陈设设计
项目面积:181㎡
主创团队:「Chen.」陈设设计
总设计师:欧阳跳
设计说明:
越南风格以其自然之美和浓郁的民族特色风靡世界,原汁原味,注重手工工艺而拒绝同质的乏味,在盛夏给人们带来风雅的气息。空间中散发出的浓烈的自然气息的桌椅,以褐色木色为主,在视觉感受上有泥土的质朴气质的天然材料,搭配自然的绿色,非但不显单调,反而抛弃了繁复的装饰线条,而代之以简单整洁的设计,配以大面积的绿植装饰,营造清凉舒适之感。装饰大部分以纯天然的藤竹为材质,如藤编吊灯,藤编花篓,圆匾等物什,带着几分拙朴,无多余的修饰,却仿佛藏着无数的禅机。那一盏盏玻璃吊灯,宛若星星点点,空间的通透感立现,让整个空间更加丰富多彩。
客服
消息
收藏
下载
最近




























