查看完整案例

收藏

下载
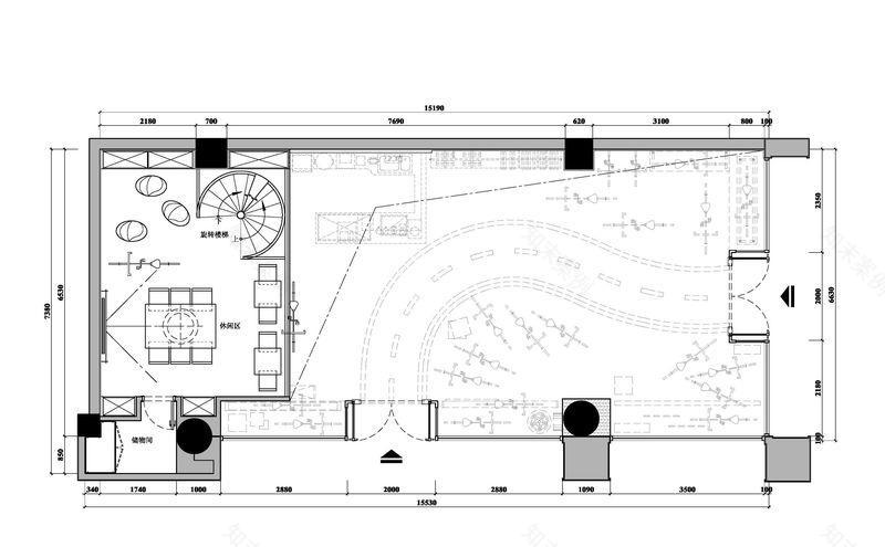
RBIKE, 位于深圳西部最大高品质人文旅游、国际创意生活空间的中心,RBIKE在中文中译为骑达。
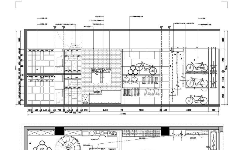
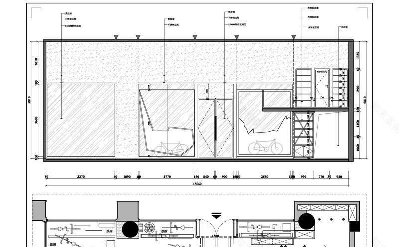
RBIKE LIFE是一个以自行车为主的全球潮流运动装备全国连锁体验空间。汇集了全球的新潮、酷玩、智能的新运动装备,自行车、助力自行车、电动滑板车、滑板车、轮滑、平衡车以及新骑行的周边产品。包括法拉利、兰博基尼、吉普、骑达、米高、乐行、BESV、大公鸡等国内外产品。 些许现代主义风格中融合了大量的工业元素,这间自行车加咖啡吧中合体空间将复古风格和主题性的特点相融合,最终呈现出复古又硬朗的自行车空间。 大量的铁元素会给顾客带来距离感,所以设计师使用了不同纹理的木材、红砖、水泥漆等丰富材料来减少这种生硬感。 精致的工业风灯具,玲琅满目的摆设,黑色铁架上除了名牌车,还有,助力自行车、电动滑板车、平衡车。 整个空间由一条悬空的跑到贯通这个空间,与地面的跑到相结合,客户在试车是身临其境。上隔层的旋转楼梯在这个空间里营造一个可以继续往上行走的感觉。 二楼的咖啡书吧,是给予客户看车的同时享受安静的时光。如果要去,可以挑选摩卡,用味道记住深圳。
客服
消息
收藏
下载
最近



















