查看完整案例

收藏

下载
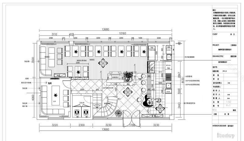
金贝斯咖啡吧是一个以美式风格为主的时尚咖啡吧。
进入空间,高大的宽厚的壁炉首先给人一种温暖、舒适的放松感和安全感,仿佛在一个凛冽的冬日裹上了一条宽厚的围巾,仿佛在一个细雨绵绵的午后一杯热水捧在手中。
放松下来后,吧台的贝斯造型用独具魅力的设计感把人逐渐带入一个热烈的情绪里。高顶和旋转楼梯气势蓬勃,使有限的空间无限放大,让人身心自由的享受这个空间。
继续深入空间,落地的玻璃窗和无垠的视野让人心情舒畅,较高的地势让人临窗而坐的时候彻底放开束缚感,不论春夏秋冬、日出日落,美景尽收眼帘。
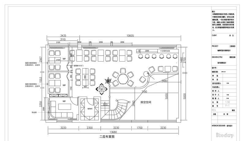
扶楼而上,静谧的二楼空间和一楼不同,多了一份私密感,牛仔风格的隔断又让整体风格统一。
金贝斯咖啡吧的设计主要体现了早期美式风格造型典雅,又不过度装饰的特点,拥有欧式风格的华美细腻,同时也融入了美式生活的自由和舒适,更加重视人文情怀,加入现代元素的吊灯、壁画,在装饰文化的撞击中享受咖啡文化。
客服
消息
收藏
下载
最近










































