查看完整案例

收藏

下载
业主要求:要求客餐厅舒适、温馨,需要三间卧房,另外男主人需要一间书房、女主人需要一间衣帽间。卫生间除了基本的功能分区以外,还要干湿分离。
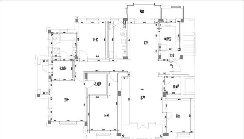
现场环境条件:1.空间需要根据客户要求重现规划,拆除部分现有墙体,将卧房规划方正、将卫生间干湿分离、独立入户衣帽间;封闭南北阳台,纳入室内空间。2.水电系统不够人性化,尤其是电位尺度不够合理、不便捷,需要重新排布。
设计方案立意:原始空间的局部调整,使所有的空间相对独立完整,功能得到最大化的展现,给业主一个舒适的居住环境,光环境跟软装的合理搭配,更好的阐释了家的温馨氛围。
主材选择及理由:地面采用仿大理石的彩虹木纹瓷砖,更能体现出男主人飞行员的干练果断,素色的纱线墙纸,不仅使空间更有质感,还能展现女主人低调奢华的气质。精致的家具很好的展现了男女主人对生活的态度。
技术层面的特殊考虑和做法:卫生间墙镶式的隐形玻璃隔断,很好的划分了空间,到达了干湿分离,同时还美化节约了工程的造价。
业主评价:设计师根据我们的生活方式跟喜好、量身定制了适合我们的家,真的很喜欢,把我心目中家的蓝图实实在在的展现出来了,生活起居考虑的也很周到,在施工工艺的细节方面也很用心,从前期的忐忑到现在的全权委托,是她追求完美、做事一丝不苟的态度感动了我们。
客厅:我们希望为飞行世家出身的男女主人,打造一个轻松舒适亲近自然的居住环境,所以提取了天空、海洋、草原作为起居室的设计元素。深棕色拉丁口皮沙发,是女主人的老上海情愫。茶几上的绣球花象征着希望、永恒、美满跟沙发背景墙的装饰画相互呼应。男主人喜欢阅读,所以给他准备了杂志筐,收纳报纸杂志。小鱼摆件象征年年有余、吉祥如意。家是生活的源泉,是温馨的港湾。
餐厅:我们更多的想表现女主人清秀的东方气质,窗帘亦带有东方元素的纹理符号、细腻优雅,餐桌上青色的瓷罐搭配几枝迎春花使餐厅充满了生命力。
过道:将各个空间划分出来,使得每个空间互不干扰,简单的吊顶设计跟地面的波打线相互呼应。后现代抽象的挂画,给人无限的遐想空间。
主卧:墙面满布的小蜜蜂和美式庄园四柱床,是男女主人对美好生活的理解。绚烂的油画和陶瓷台灯让“庄园生活”五彩斑斓。
主卫:干湿分离,优雅淡然,点燃烛光,享受一个浪漫的香薰泡浴。
书房:整体定制的柜体,将机长的帽子,地球仪,不同种类的书,以及从世界各地带回来的纪念品,都做了合理的归纳与整理,书房不仅可以阅读,还可以储存大件不常用的物品。使空间能够得到最大化的利用,灰绿色的墙纸营造一种鸟语花香的的氛围,跟窗帘的颜色相得益彰,穿杆帘不仅能展现男主人的果敢还能展现女主人的柔美。
女童房:我们选择了糖果色的粉色跟绿色为主要色调。记事板可以记录每天要完成的事情,让孩子能够从小养成好的习惯,床头绿色带橄榄枝纹样的墙纸丰富了空间的层次,蓝色的小木马开启了童话故事的乐章,床头逍遥游主题的装饰画,更多的承载了父母对孩子的期望,希望孩子能够在父母的精心呵护与关爱下像小蝴蝶一样完成美丽的蜕变。
长辈房:以淡蓝色作为主要的色调,精心挑选过的床品,精致的马仕革墙纸让空间更加富有生命力,建筑主题的装饰画能彰显男长辈的博学才识,整个空间营造出了一种内容丰富且清新的居住环境。
客服
消息
收藏
下载
最近






















