查看完整案例

收藏

下载
美丽的塞纳河
你是一位高贵的绅士
又是温柔浪漫的大众情人。
微风亲吻你的脸颊
白云簇拥你的柔情。
树叶为你翩翩起舞
细雨为你动了真情。
你搜集了多少动人的故事
你扑捉了多少恋人的身影。
与你牵手
凡尔赛宫的后花园
留下了我们浪漫的足迹。
《约定————致塞纳河》
设计师形象地演绎“风情万种的塞纳尔河浪漫情怀”的异域生活方式,将优雅的、自然的、艺术的法式贵族气息渗透在每个角落,用创新的室内陈设来增强历史与文化气息,将人们在别墅内的生活细致而又精致娓娓道来。
奢华于心才是极致的奢华,享乐于思才是至高的享乐。 色彩激发梦想,梦想改变生活。从这里开始,一个空间一个故事,多种风格的混合配饰…… 蓝色和黄色的时尚热潮,两者在同一空间相遇碰撞,充满了绅士气息,领您感受一个多元化风格带来的现代奢华的生活新体验!
金色和蓝色的色彩运用,高雅精致,符合家庭空间的色彩要求,加入摆件和挂画的装饰,整个品味得意彰显。
在追求完美的个性中,演绎绮丽,雍容华贵的法式贵族风情。在整体空间色彩的运用上,以宝蓝色为主色调,而各个空间则以金色的色调相应,形成尊贵与优雅的强列冲击,消除了传统法式的视觉繁复,更多清新奢华美态为之呈现。
客厅
客厅
客厅
餐厅
餐厅小景
主卧
主卧小景
书房
长辈房
长辈房小景
女孩房
女孩房小景
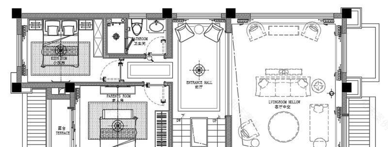
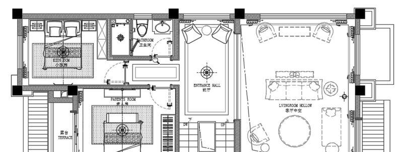
一层平面图
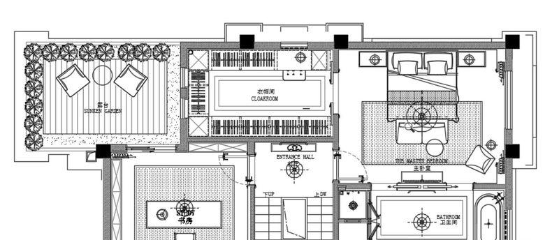
二层平面图
三层平面图
户外平面图
客服
消息
收藏
下载
最近


















