查看完整案例

收藏

下载
方案伊始,考虑解决传统棋牌商业空间,近些年人流不足,及新店与老店的一个串联关系,
并结合中国古代智慧,遵循天时、地利、人和之道,打造和谐新颖的商业空间,思考新老店之间的串联,从《桃花源记》中汲取了灵感,并以此为主题进行设计方案的开展。
天时:后疫情时代,国内消费降级,传统的消费空间已经满足不了消费者的内在需求
地利:新店与老店串联,新店周边棋牌综合娱乐店面相对聚集,老店积攒了相当的客户群体
(桃花源记“林尽水源,便得一山,山有小口,仿佛若有光。便舍船,从口入。初极狭,才通人。复行数十步,豁然开朗。”的画面感。希望以此为主题,展开一系列的引流创意。)
呦呦鹿鸣,仰望星空——人和
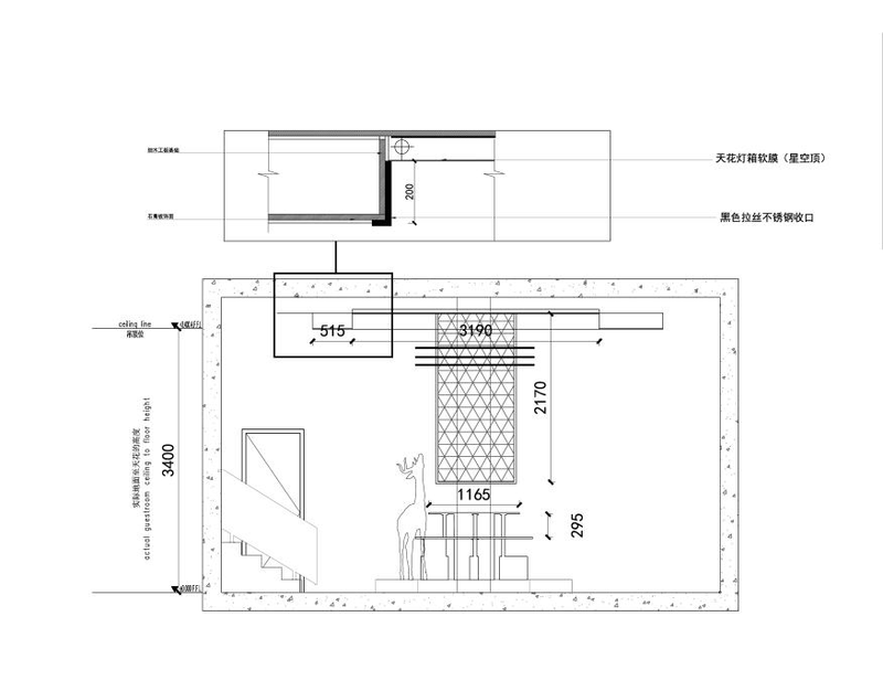
“呦呦鹿鸣,食野之苹。我有嘉宾,鼓瑟吹笙。。。”中庭进行了大刀阔斧的拆建,考虑引流,以及突出整个空间桃花源的主题,营造了一处仰望星空的中心景观。
流水生财——地利
借地势之利,造流水生财之势。
正门入口等候区选择设计一块超大的幻彩灯箱做出彩色的水流动感,恰好流入休息区的微景观 之中,营造出整个消费体验场景静中有动的灵动之感。
城市归隐——天时
线下消费对空间的要求迭代。后疫情时期,消费者对于消费空间的体验,一些能够让身心放松,贴近自然的需求不断提升。
新店改造前,整个空间属于过去老厂房的格子间感觉。虽然这种原始多柱体的土建格局有利于多做客房间隔,但本次商业设计中给客户亟待解决的是引流问题。所以中厅大刀阔斧的进行了一些拆改,加入“呦呦鹿鸣,仰望星空”的一种意境,希望从商业引流角度对项目 的整体盈利进行一些促进。从中厅顺时针旋转,。
上抬空间使用弧形顶面,使用造型灯光的光影 结合做出一种光影效果。
每一个包间的门口设置了一个洞口,都有一个不同的微景观故事,希望能为进入空间的客人带来一种处处细节,又有故事的细腻层次之感。
门头的设计 考虑到 楼上老居民楼的属性,在满足灯光效果层次的同时做了一些 挑檐的遮挡,正门头的灯箱灵感来源于山东经典小吃“高粱饴”的软糖,外部一层轻薄的糖衣(磨砂亚克力),内部有橙色光源的搭配,夜间的室外简洁而精致。
项目名称:麻小镇
项目类别:商业娱乐休闲空间
项目地址:山东青岛
设计公司:桓茂设计
主案设计师:刘彬
设计团队:刘彬 葛温轩
主要用材:定制金属 木纹墙板 LED 肌理涂料
室内面积:600㎡
设计时间:11/2022-12/2022
施工时间:12/2022-4/2023
摄影师:焦磊磊
客服
消息
收藏
下载
最近



































