查看完整案例

收藏

下载
本案业主是一对年轻有为,事业有成的中年夫妻和父母,加上两个小孩的六口幸福之家。时代在发展,社会在进步,业主对当下比较流行的现代和轻奢风格颇有喜爱,但一家人对中国传统文化也情有独钟。所以设计师安启军就结合了业主一家对设计风格和平时的兴趣爱好及生活习惯定位为中式轻奢风格。
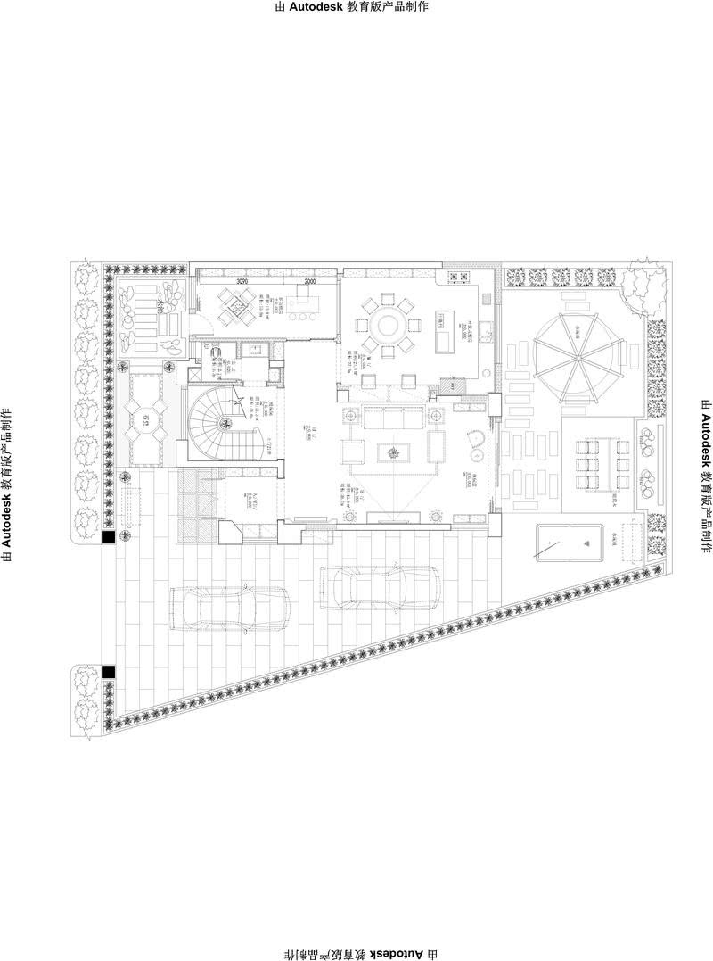
一层原始户型图
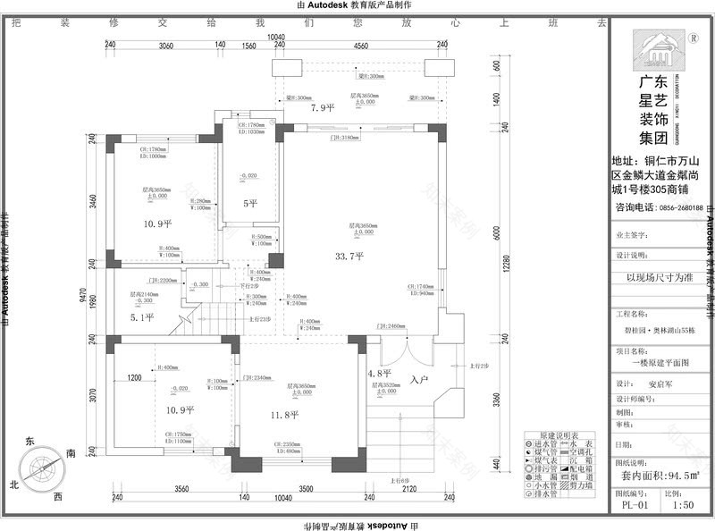
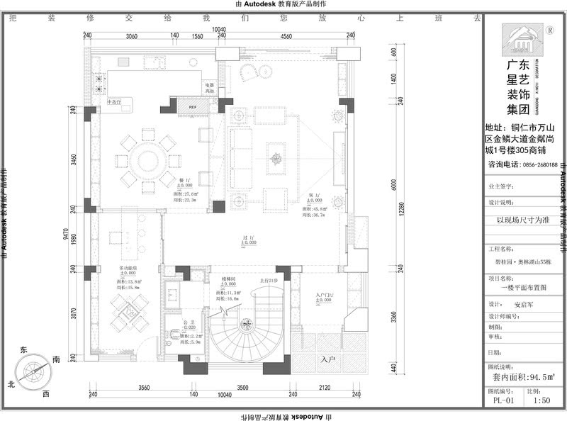
一层平面布局图
二层原始户型图
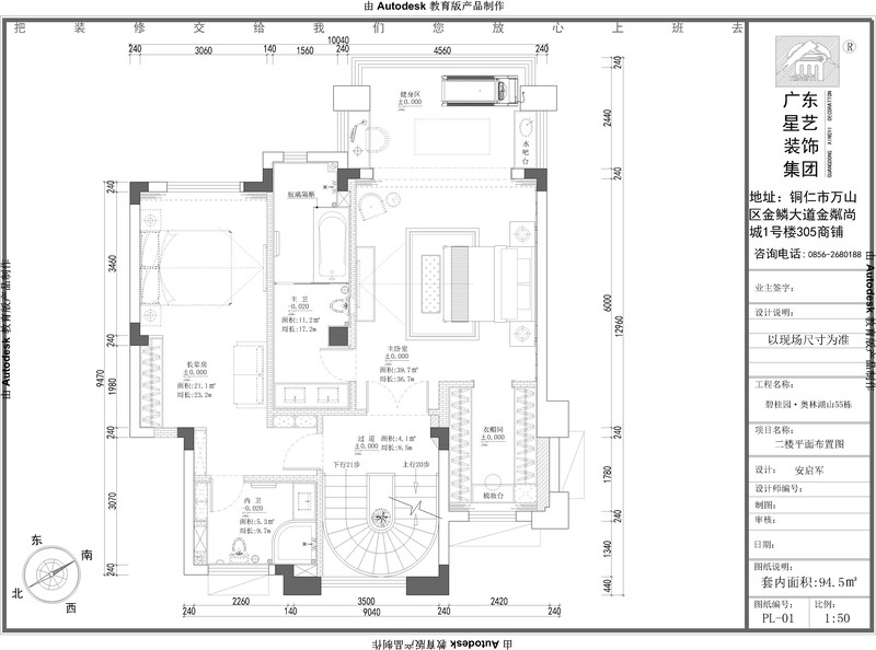
二层平面布局图
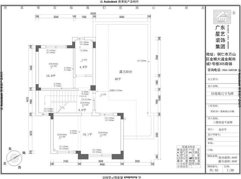
三层原始户型图
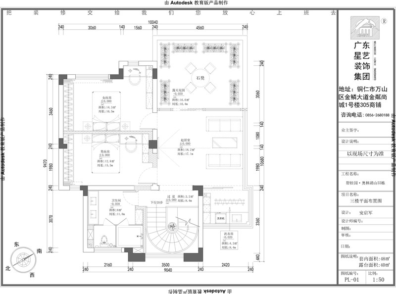
三层平面布局图
由于新中式装修风格与轻奢装修风格的不同,设计师将现代轻奢的元素与新中式的元素交融在新家中,不仅适合年纪大、事业有成的成功人士,同样也能满足现代年轻人对中国传统文化的向往与追求。
现如今,在奢侈风暴洗礼下的都市人,一方面满足了一掷千金的消费能力,另一方面是对“高质量和高品质”的生活追求,所以“轻奢”作为一种流行概念应运而生,在都市的年轻人群中大受追捧,人们对居住品质与精致生活的追求和向往。
大理石与黄铜元素的搭配,也堪称画龙点睛之笔。一个冰冷自傲、贵气逼人,一个复古精致、温情满满,两者的结合成就了一种很高级的设计生活美学,就如中式轻奢风格设计一样,不仅可以令整个家居空间增色不少,让家舒适温馨,低调奢华。而且还将居住品质提升到一个新的高度!
中式轻奢风格,它是一种设计风格,也是一种生活态度,它着力于表现简约、舒适、文化内涵,低调而内敛的生活品质,同时又不失高贵与奢华。
同时,它还浓缩着意想不到的功能与细节,它比普通更考究,比奢华更自由,这以独特的中国传统文化魅力撩拨着我们的身心与视觉。
中式轻奢风格,大多以简洁硬朗的直线条,设计为基底,采用自带奢华气质的大理石、金属、玻璃、镜面等元素,为空间缔造出丰富的层次感。
这种传统的审美观念在“新中式”装饰风格中,又得到了全新的阐释:依据住宅使用人数和私密程度的不同,需要做出分隔的功能性空间,则采用“哑口”或简约化的“博古架和镂空隔断”来区分;在需要隔绝视线的地方,则使用中式的屏风或窗棂,通过这种新的分隔方式,使整个别墅大宅展现出中式家居的层次之美,从而彰显了一种高品质的文化生活格调。
花园里的中式盆栽,枯山水,结合室内空间的圆形拱门,圆形窗,中式隔断,博古架,中式装饰画等在张力十足的线条勾勒、层次丰富的材质运用以及质感奢华的装饰细节下,为居住者带来一种低调奢华,回归自然的奢雅生活体验。
主卧室整个空间蕴含大量的设计细节,比如:纹理自然的木地板元素,与满载光泽的金属产生碰撞,总是带有一丝令人着迷的精致感,使整个空间时尚大气,温馨又舒适。
而温润质朴的木质元素,又与镜面、黑钢等材质相得益彰,不仅有利于平衡空间气质,更展现了一种别具格调的艺术之美。
而在父母房装修设计中,“轻奢”主要表现为一种带有理性和温度的设计美学风格。以极致的简约风格为基础,在通过一些精致而不失高档的中式软装元素来凸显质感,让单调的卧室空间显得更饱满,处处透露着不俗的文化品味。
新中式越来越受到人们的喜爱,不仅有传统中式文化的气质韵味,还有现代元素的完美结合,很符合现代人的生活习惯和精神追求。
按道理来说卫生间应该讲究一个实用性,多数都是现代风格,不过人们追求的格调越来越高,就连卫生间都兴起新中式风格了,不信你看:
卫生间吊顶做无主灯设计吊平,显得空间更宽敞大气,统一的天然纹理石材,搭配具有复古现代色彩的手工简约装饰画,放上一盆植物装饰,美丽随处可见。
石材元素与搭配中式元素,象征中式风格的山水花鸟水墨画装饰效果,很有创意。】
红色,是中国传统建筑的代表,一般用于外墙的装饰,部分铺设点缀倒也是韵味十足。
花格,线条、仿古的一些器具玩意儿,实木浴室柜和大理石材搭配起来,显得古朴稳重。
实木浴室柜,提供了足够的收纳空间,中式元素的仿古墙纸素净雅致。
客服
消息
收藏
下载
最近























