查看完整案例

收藏

下载
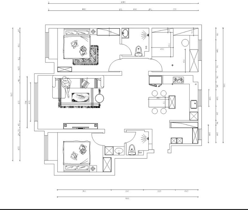
将其中一个小卧室装成极简风榻榻米,高级又实用。衣柜书桌一体化,学习、工作、休息一个房间都实现了。
轻奢风的设计手法中“轻”的特点,干净利落的线条设计,极简而不随意。“奢”可以体现在软装装饰上,简单来说就是去掉不必要的装饰,通过有质感的软装家具展提高居住品质。
设计是一种享受、一种心态、一种开心的生活方式。
现代轻奢风格既有简洁的设计,又不失细腻的质感,这样的风格正是人们中意的风格。
这是一套三室一厅、两卫一厨现代轻奢风格装修案例,整体装修采用了较多的现代感的设计元素,结合上端庄华丽的金属、玻璃元素,并以圆滑的线条,营造出一个华丽优雅的浪漫氛围感。
客厅整体给人一种宽敞通透的感觉,简约大方的吊顶上安装着多个射灯,能给客厅带来充足的照明。电视背景去繁就简,采用简单的天然大理石作为电视背景。
简约沙发上摆放着多个靠枕,角摆放着相框和台灯,沙发另一边摆放着造型精巧的高脚台灯,沙发后的抽象画增加了客厅的艺术气息,简约大方的大理石茶几上摆放着精致的小摆件。
理想中的开放式厨房!
灰白配色极简耐看
无把手整体橱柜
岩板小岛台连着餐桌
低饱和度的卧室,满满的氛围感。砸掉原本的卧室飘窗,大大增加了使用空间,简单贴了一圈双眼皮吊顶,显得卧室更加大气。
客服
消息
收藏
下载
最近










