查看完整案例

收藏

下载
九號院别墅
“别墅”顾名思义,为独立成栋的园林居所。
近些年滨城建的别墅很多(这里提一下,联排别墅不算是真正意义的别墅),较符合配置条件的,九號院算是一个,虽然园林也很袖珍,但比起“联排别墅”强太多了。
别墅的面积通常较大,居住人口并不多,空间分层相互分离,拉开了家人物理距离,彼此的沟通减少了,关照也可能会减少。家庭成员间需要沟通分享,也利于孩子健康成长。
我总是先思考环境如何培育人和疗愈人,深入了解每个家庭的价值观,想象家族成员的生活场景,运用这个观点来做设计。
“教育培养儿童。并非着重形式,重点在于精神层面,男女大不同,性别差异会影响成长变化,还有一家之主的意志,夫妻的兴趣等价值观,都会影响成长过程”。——枡野俊明
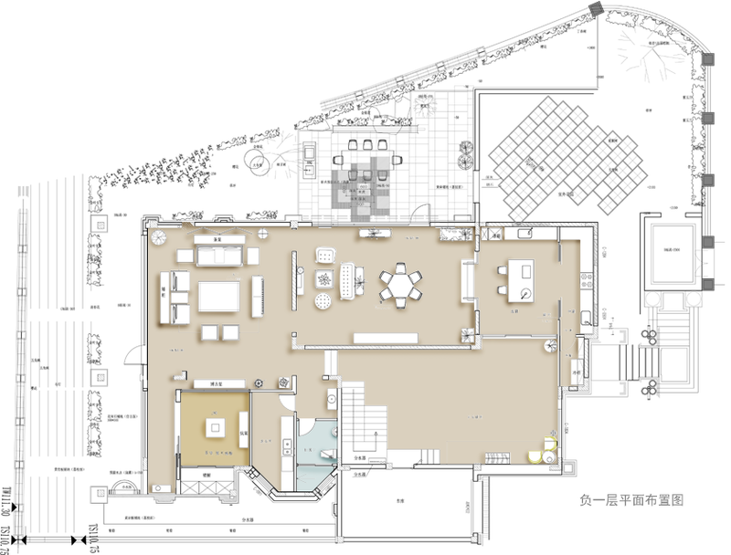
我亦在本案重点关注一家人团聚的共享空间。在负一层的设计里,家庭成员可以在这里运动(乒乓球)、看电影、烹饪美食、就餐、到院子里活动、打牌、聊天等享受一家人其乐融融的快乐生活。
“春有百花冬看雪,夏有凉风秋望月”
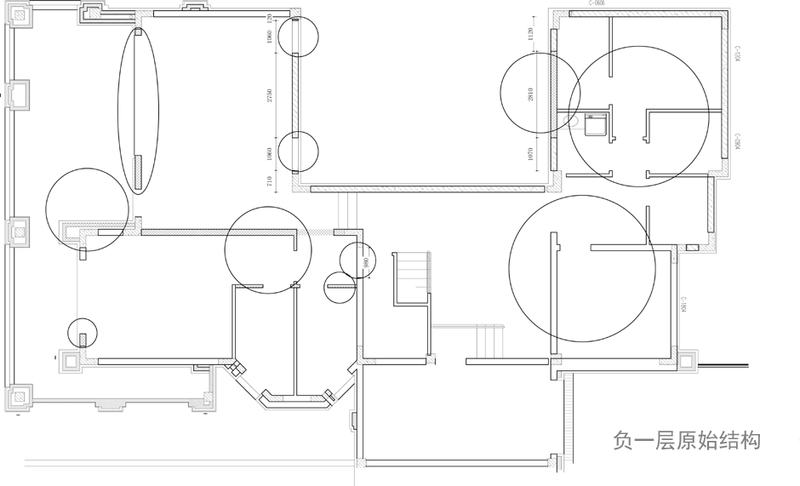
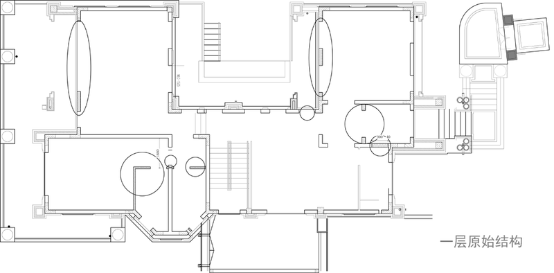
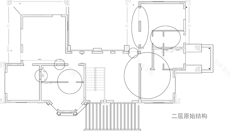
此别墅分三层,负一层定为家厅共享休闲活动层,一楼北侧入户,定位为长辈层(便于行走)和起居室,二楼为业主与孩子的就寝层(便于照看)。
原有的餐厅所在的区域,光线不佳较为闭塞,且没有围合感,大家只想赶快吃完离开,这个宝贵的与家人共处,对孩子进行教育的美好时光,就会白白浪费。
改造后的餐厅,把原来内庭院扩充为餐厅,餐厅的房顶做为内庭院,餐厅的光线通风都得到解决,与室内客厅、厨房相互间交流顺畅,直通内院,室外景观也纳入到室内。 原有的厨房打开,主妇在烹饪美食同时可以照看孩子。
在室外区,单独开辟出一个设备间,仓储间。这样室内空间得到更好的利用。
客服
消息
收藏
下载
最近
























