查看完整案例

收藏

下载
本案定义为现代轻奢风,现代轻奢是将材料、色彩、灯光及元素进行简化,以实用的功能性家具为主,用简洁的视觉效果营造出时尚前卫的家居氛围,用优雅低调最受青睐的高级灰把持全局,使得整体空间显得高雅、深邃、宁静、性感。
中性而又低奢的黄铜拉丝材质一直伴随着主旋律而存在,大面积的高级灰会稍显缺乏生活气息,所以在不同的空间中设计师加入了不同的亮色来点缀,在拉开空间层次感的同时赋予了每个空间不同的灵魂。
客厅处将原本卧室与客厅打通,形成一个大气、宽敞的客厅与品茶区,同时将楼板拆除将楼梯置于茶台后,制造一个挑高区域,并整面铺贴瓷砖,动静分离的同时使整个公共区域完整、大气。
主卧整体采用暖色,营造了一个温馨、放松的睡眠空间。
一层平面布置图
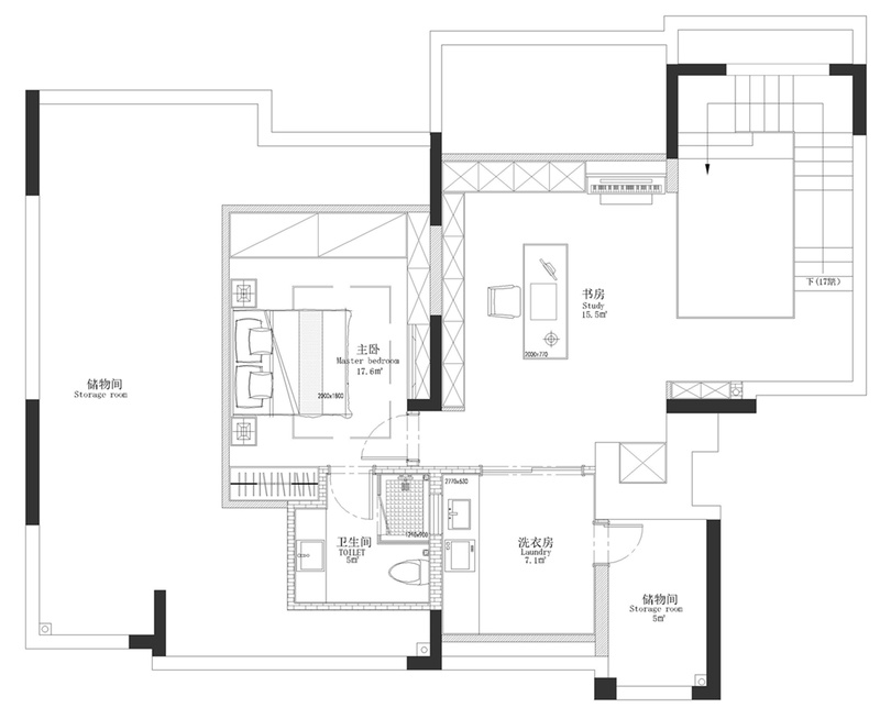
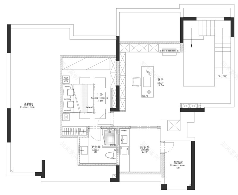
二层平面布置图
客服
消息
收藏
下载
最近











