查看完整案例

收藏

下载
项目总造价:308万元设计面积:618㎡项目地址:中国嘉兴设计时间:2019年12月完工时间:2020年8月“合”即是合院,又是融合,整栋房子不只是孤零零的躯壳,承载了当地人文,观秀丽之风景,品中式生活之意韵。
诗人眼中的风雅桐乡:泊船石阶旁, 疑是到吴江. 旧瓦青苔绿, 老屋木色黄……
我眼中的桐乡:一块石头、一段残碑、一匹绸布、一座石拱桥、一片花海、一条运河、一声钟鸣、一条古风犹存的小巷……
本案从中式文化中摄取灵感,以现代人的生活方式为主导,局部运用富有韵味的中式家具,以自然元素作为装饰点缀,谱写出现代优雅的新中式风格。以高级灰为主色调,点缀生命的绿为点缀色,使空间更富吸引力;整体空间端庄中不失的现代美学感,简约且蕴含丰富的生活情趣。
桐乡被中国书法家协会授予“中国书法之乡”称号,成为全省第一个授牌的书法之乡;翰墨陶冶性灵,放在桐乡更有着特别的意义。源远流长的书法、篆刻文化在桐乡绵延千载,至今仍焕发着勃勃生机,让这座城市拥有了尤为珍贵的文化风骨、文化品格和文化气派,展现出了“风雅桐乡”旺盛的发展潜力和无限的城市魅力。山得石而雄,水得石而清,園得石而秀,谷得石而幽,洞得石而雅,人得石而樂。源远流长的书法、篆刻文化在桐乡绵延千载,至今仍焕发着勃勃生机,让这座城市拥有了尤为珍贵的文化风骨、文化品格和文化气派,展现出了“风雅桐乡”旺盛的发展潜力和无限的城市魅力。
人物:父母:65岁左右文人学者,目前退休状态,喜欢书法,热爱自然,积极参与社区活动
男主人:40岁左右,某建筑公司高管,对生活品质极高,对于生活有自己的一些见解,喜欢茶艺,健身; 女主人家庭主妇,照顾家里起居,对生活的美学剖有见解,喜欢收集有设计感的物件
儿子:13岁,性格活泼,受父母熏陶长大后希望做一个设计师
客厅:进口沙发Arkrtipo,单人沙发Polifom及电视机柜Flexform,挂画创作理念:圆代表“合“,即是合院也是融合,融合当代生活方式,把东方意境体现在空间内,细节里; 整幅画面也是希望把小桥跨水的意境体现在画面上;
餐厅:进口餐椅Flexform
茶室:挂画创造理念:濮院小镇项目以水为媒介,在方案初始阶段,引用了水墨书法的元素;该空间为茶室空间,我们希望这幅画的光泽面能体现水的律动在空间内出现;且这幅画的辅助材质为茶叶末,运用了传统水墨晕染的手法体现改空间的文化底蕴。地面吊钟水培植物也是希望能把生命感的东西引入空间,此情此景就像小镇的一处缩影。
楼梯间挂画:结合了桐乡当地的面料元素,运用到画面上,延续的画面增加了空间的延展性,也大大增加了画面的厚重感;
二层主卧:进口床Giorgett,进口单椅Minotti;
二层儿子房:单人沙发Baxter
地下夹层工作室:单人沙发Cassina
地下层起居室:茶几及边几Minotti,进口单椅Cassina;
饰品:品牌:TOM DIXON
坚硬磨砂的金属让其更有珍贵感,寓意年轮的换轮雕制在下发底座上。雕塑家和设计师们惊叹了数千年,像礼物一样支撑着生活。
一座合院,端庄而不失现代感,简约却富有情趣,这便是设计师对“桐乡新中式”的一次尽心诠释。
一层客厅
一层客厅
一层客厅
一层客厅
一层客厅
一层客厅
一层客厅
一层客厅
一层餐厅
一层茶室
一层老人房
一层老人房
二层主卧
二层主卧
二层主卧
二层主卧
二层男孩房
二层男孩房
夹层
夹层
地下一层起居室
地下一层起居室
地下一层起居室
地下一层客厅
地下一层
地下一层起居室
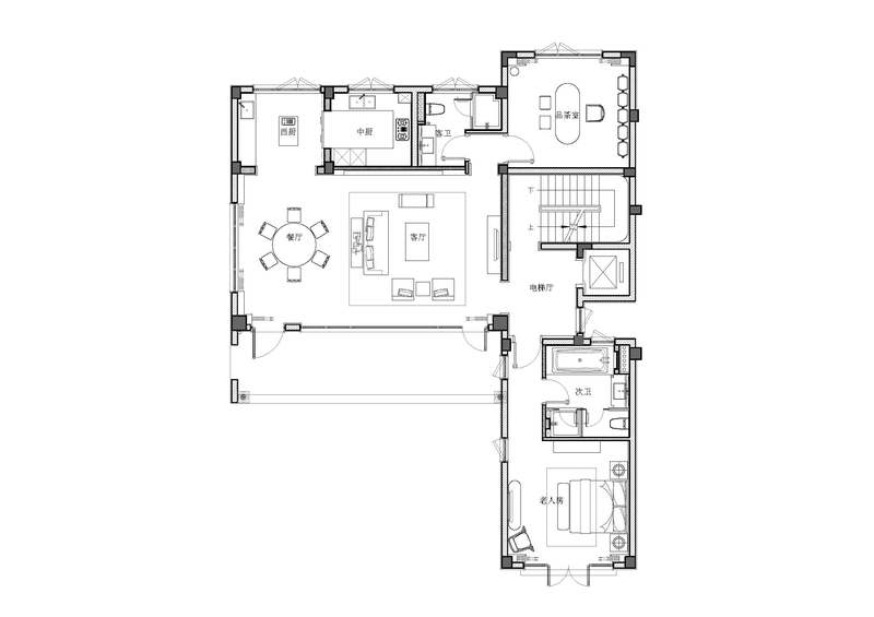
一层平面图
二层平面图
夹层平面图
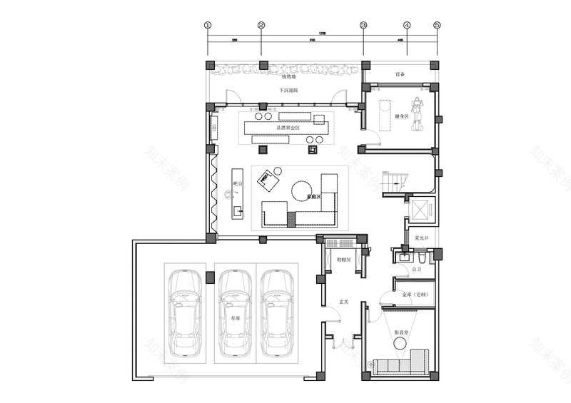
地下一层平面图
客服
消息
收藏
下载
最近
































