查看完整案例

收藏

下载
项目名称 | 融变
项目类型 | 商业空间
项目面积 | 260 ㎡
项目地点 | 江苏南京
合作方式 | 全程托管
总设计师 | 陈熠、肖锋
主案设计 | 陈鸣
执行设计 | 陆坤全
ZEN,意为禅;禅,基于“静”,超然平淡,回归本真。在尘喧之间寻觅一方净土,众人以远离跳脱凡间纷扰,大隐隐于市之人,身在繁华,心归质朴。至今日,东西方融合设计的基调,依旧是文化差异带来的困惑与迷茫。
稳重、质感、含蓄、低调的张扬,设计师们汲灵感于中式禅意文化,融入东方低调内涵,西式时尚思想贯穿其中,营造非常规空间意境,挑起内外戏剧性的碰撞。
无碰撞!不融合!没有张扬的颜色辅助,唯有弧形点缀,直击冷硬的墙体,大片挥洒的波纹墙面,予厚重墙体一丝低调质感。灰色笼罩的基底,石材被粗犷地嵌入墙面,光影折射下,石头“撞击”地面,一石激起千层浪,暗流涌动,整个空间泛起层层涟漪,抬头即见多种空间变化。
随意摇晃的酒杯,液体与玻璃碰撞掀起细微波澜,西方鸡尾酒寓意融合,现代中国人却深谙酒的社交本质,空间转换,以酒为媒,东西文化勾勒出完美的和谐质感。
生活的内核不只是眼前的苟且,设计的艺术不止于空间的表象。东西文化的现代融合,要打破既定规则,解构穿插、糅合重组、交织再生。
设计师们别出心裁,颠覆常规操作,倒放的雕塑,自下而上、磅礴喷发,戏剧性地诉说空间审美艺术。东方的含蓄与西方的张扬,在过往、当下和未来交织的空间中共存。
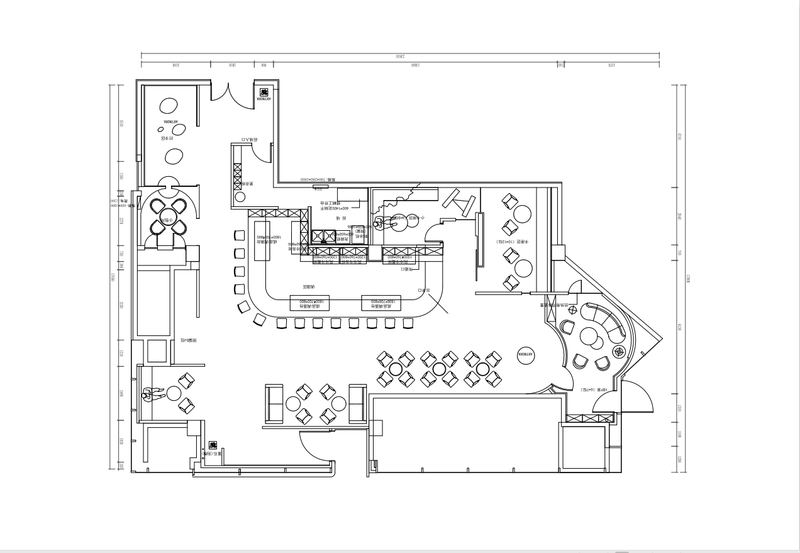
平面图
平面图
平面图
总设计师肖锋
总设计师肖锋
总设计师肖锋
总设计师肖锋
总设计师陈熠
总设计师陈熠
总设计师陈熠
总设计师陈熠
总设计师陈熠
总设计师陈熠
执行设计陆坤全
执行设计陆坤全
执行设计陆坤全
执行设计陆坤全
执行设计陆坤全
执行设计陆坤全
执行设计陆坤全
主案设计陈鸣
主案设计陈鸣
主案设计陈鸣
主案设计陈鸣
主案设计陈鸣
主案设计陈鸣
主案设计陈鸣
主案设计陈鸣
主案设计陈鸣
客服
消息
收藏
下载
最近




































































