查看完整案例

收藏

下载
清风杨柳芊,
院庭四合间。
房脊琉璃苫,
天井座中间。
民风格律远,
还古续今观。
屋里清香漫,
茶盏对八仙。
——戚秦《四合院》
这是新加坡筑维空间设计完成的一套位于千年帝都洛阳的四合院项目。在整个规划过程中,筑维团队秉着匠心、诚心、精心、放心的原则,对中国传统文化、空间尺度、人居理念进行深度把握,游走于现代与古代的迷幻之情,最终为业主呈现出一幅美丽画卷。
业主夫妻均为洛阳市知名企业家,对中国传统文化有独到的见解,非常注重生活品味,想在烦躁的社会生活中找一片宁静的栖息之所。四合院作为中式建筑传承下来的一种建筑设计文化,拥有深厚的文化底蕴及研究价值,不显山不露水,走进去却自成天地,一砖一瓦都散发出古朴浓厚的生活气息。当客户找到筑维空间团队沟通之后,感觉不论在风水和设计上都非常契合,因此将本案的选址勘测、建筑建设、风水布局以及后期的硬装软装全部交由筑维团队负责完成。
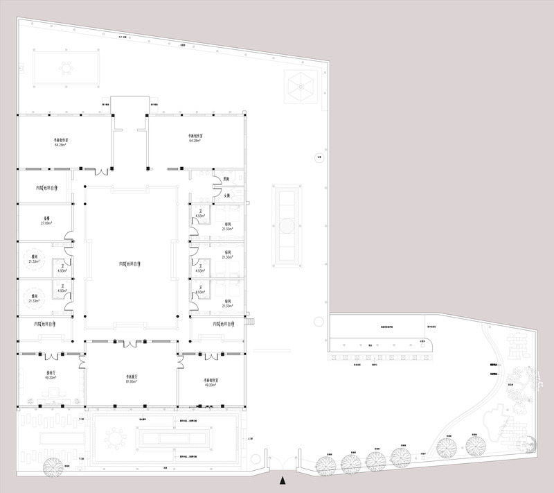
此次项目占地总共8.4亩,其中室内面积约1500㎡,庭院面积约4000㎡。院落的形式基于传统四合院为空间赋予层次,将天空与地面的景观共生其中,让景观融入建筑,创造出内部与外部的重叠,阵列式的砖墙完全由灰色的回收老砖砌成。
一进院首入眼帘的是一面砖雕照壁,旁边则是十二生肖兽首造型。再往里走,宽阔的外部通道形成了广阔的视角,过道中间的景观造型遮挡了一部分视线,同时勾起人们对空间不断探索的欲望。
二进院东西的耳房厢房设有客房和公共设施,如书画创作室、餐厅、卫生间等。穿过婉转的游廊,住客们最终到达自己的客房,客人们可以在自己的房间内欣赏内院的景观,让人在墙垣之中获得自然与放松。
三进院则为书画展厅后的接待厅,在书画展厅的东侧开了一道门连接第二和第三进院,整个院落当中各个功能区互不影响。
“一片片土瓦,为远古牵线。将淳朴凝聚,睦邻亲情融合。欢声笑语,在老屋檐缠绵。虽然低矮,难同现代比肩。但温暖而清新的,泥土气息,能将人心拉近,远离孤独,美梦常留心间。”四合院,不仅是传统智慧和文明的结晶,在城市住房愈加普遍的今天,依然是我们充满活力值得参考的建筑模式。
鸟瞰
主院大门
外院1
外院2
外院3
外院4
外院5
外院6
内庭院大门
内庭院1
内庭院2
内庭院3
内庭院4
内庭院5
接待厅
接待厅
书画创作室
书画创作室
室内小品
客房
客房一角
夜景1
夜景2
夜景3
夜景4
夜景5
夜景6
平面布局图
客服
消息
收藏
下载
最近






























