查看完整案例

收藏

下载
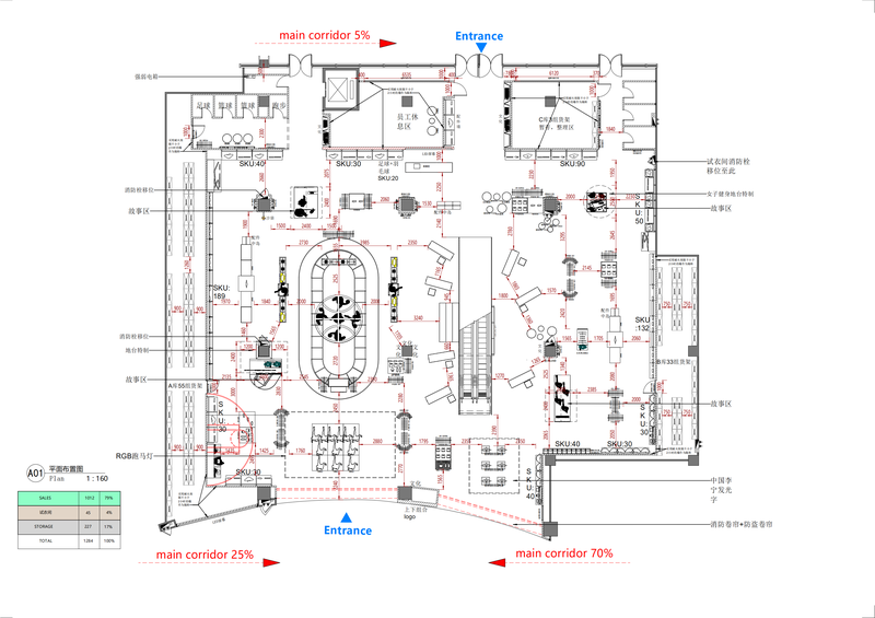
国际一流的具有时尚性的专业运动品牌李宁,一直在用行动诠释着“一切皆有可能”的品牌标语。在李宁第八代终端店铺形象设计中,设计师以跑道和篮球馆为设计灵感,将跑步训练、篮球等专业产品与运动时尚、中国李宁等各品类时尚产品有机融合在同一店铺内,突出品牌专业运动属性,兼具时尚生活气息。店铺从空间设计到货架展示,配合着不同的主题区域展示着不同的空间氛围,且各品类商品布局清晰显著,方便顾客挑选商品的同时,为顾客带来多层次的购物体验。
门店外立面色彩缤纷且亮眼的招牌点明李宁青春、活力、运动、时尚的品牌风格,空间内部以简单的水泥材质装修,时尚个性,且衬托产品亮点。店铺内的货架材料,以金属材质、不锈钢材质、碳纤维质感饰面为主,货架可拆解,重复设计利用,减少资源浪费。
店面入口为跑步训练商品展示区,以跑道为设计灵感,顶部的RGB变色灯带有规律地排列,灯光的律动搭配下方的跑步模特,形成动态化展示形式,吸引来往人流视线。位于店铺中场的椭圆LED屏灵感则来源于篮球场馆顶部的LED屏幕,结合下方篮球模特焦点展示,在中场区域形成篮球主题商品展示的氛围特征。具有中国本土特色的“中国李宁”商品展示区在灯光,货架及部分道具中运用传统的中国红,浓烈的色彩在不锈钢展示背景板互相的反射下,显得热闹非凡,在无形中划分了中国李宁展示区与其他区域。各大展示区通过道具材质的变化、灯光的凸显,打造适合各自产品的空间氛围。
李宁第八代终端店铺有着丰富和较为完善的标准化体系,店铺形象也在不断的深化、补充及完善,形成一套动态化、持续化的店铺形象标准。
客服
消息
收藏
下载
最近
















