查看完整案例

收藏

下载
【你好,栖霞山的爱】15万以内的预算,25年之久的老房。
一开始,当了解到是这情况,是有打退堂鼓的。我工作到2020年,也整整10年了。为什么要接这破房子的装修?
可当我站在现场,慢慢的和这对相爱的人,沟通后感觉到,他们需要设计。这跟钱没有关系了。
他们是在栖霞山上相遇的,而这套住宅就在山脚下,紧靠着女业主的单位。他们都喜欢爬山,并且都来自同个家乡,徐州。温文尔雅的男主人,甜美文静的女主人,就因这山上的枫叶红了,而邂逅相遇了~
老房要注意很多事情,首先是建筑本身的通风与采光。
他们厨房的窗户和朝北的次卧,都被室外的大树给挡住了光线,而客厅的墙体和阳台的大隔墙,也完全挡住了公共区域的自然光。而主卧的光线也被前一栋楼挡住了,主卧的通风,也因为承重墙和门洞的限制,而不南北通透。
还有不少问题啊,如本身老房墙体的老化,自带很多的铸铁下水管,还有能用的旧暖气片的大量管道,顶面的楼板开裂,餐厅的重新规划,多出来的书房的功能区,收纳空间的最大化等等等
还有,女主人是护士,慢慢了解发现,她有很强的卫生要求,经常夜班,对光线和色彩的把握度要高要敏感。男主人是经常在家要用到电脑,也要考虑家庭的办公化。
并且,这是他们的婚房,我们不仅仅要为第一年考虑,还有为他们后几年的婚后生活,要提前考虑进去。比如将来的婴儿床如何摆放,母亲喂奶时的灯光明暗度与灯罩的选择,保温奶瓶如何在卧室,既能充电摆放还能顺手拿到,小孩的储藏柜布局,他们未来的小孩满月或一年的拍摄照片,挂哪面墙,我们的家具拐角是否影响未来小孩的跑动等等等
这些,其实都需要考虑进去。
可最为难一点的,是他们的预算,只有贷款下来的15万块钱。
那一刻我想,如果接手了,我睁一只眼闭一只眼,骗他们骗自己,是可以忽略了设计,蒙蔽了过去。
但我不能。
现在越发的发现一件事,对于一个设计人(我从不自称自己是设计师,我不够格称师),他值不值钱,就看他的原则值不值钱。
设计人对自己的原则越坚定,他的设计越值钱。
我的原则,就是多利他的去思维。利他,也是对自己最大的帮助。
我当时就明白了,如果想自己更值钱,这家小案子,我必须接手。要不然我肯定会后悔。后悔背弃了自己的原则
确定了下来,我就全力以赴的面对了,首先是多现场观察,从室外到室内。
先是跟小区的街道管理沟通(这小区没有物业),商量把窗外多冒的那些树的树枝,给切割掉。不影响北边的光线。
然后与南边楼下的业主打好招呼,把阳台的西南方向墙体,打开一个窗洞,可能施工时候,会有小碎石子掉落下来,影响楼下居住。一旦打开,通风与采光就能从阳台最大化的环绕进来了。
紧接着,自己买了水果,去拜访了楼上的顶楼住户,了解是否还保留了老的铸铁下水管,因为厨房和卫生间有不少的管体,如果他们没有保留,我们就可以改造了。幸好他们已经切割了,可改造啊。
接着就是暖气片的变更,再去与街道的沟通。
然后就是墙体的承重拆改与墙体的维护了,在开工前,就安排了非常资深的工程经理,提前进场沟通,在现场对接施工图纸。
而前期平面的布局,也是多次的推敲与更改才确定了下来。
在立面效果上,首先就是主题的设定。就是,围绕室外他们相遇相爱的圣地——栖霞山
无论是前期的硬装主材的选择,背景墙的考虑,软装的搭配,都围绕着他们的爱情。
尤其,是最后的软装陈设,我们在南京的11月中旬,栖霞山枫叶最美丽的时候,也是最后软装的冲刺阶段,我们相约一起去美丽的栖霞山,一边游玩,一边私人定制他们的软装!我们一起采摘了枫叶,挑选了当地的枫叶雕塑,并且我呢,也兼职了下他们的“摄影师
【他们携手的背影】
【我的摄影,他们的背景】
【原始的老房】
【原始图】
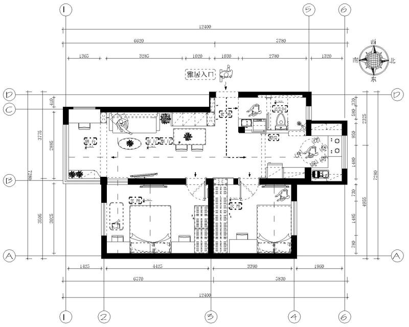
【最后确定的平面方案】
【次卧的一角】
【次卧】
【主卧】
【正对次卧门的蝴蝶定制照】
【厨房的一角】
【厨房】
【明亮的厨房一侧】
【厨房保留的凹洞,做成黑板墙】
【主卧的一面】
【女主人的梳妆台】
【梳妆台的一角】
【清新的卫生间】
【我们采摘的栖霞山枫叶】
【栖霞山的枫叶雕塑】
【雕塑一角】
【餐桌】
【背后的油画,他们相爱的背景】
【他们的背影】
【客厅的一角】
【餐厅的卡座】
【客餐厅】
【客餐厅一面】
【客餐厅的全景】
【客餐厅的一面】
【玄关】
【他们】
【我们一起的软装】
【最后的寄语】
【我们的合影】
客服
消息
收藏
下载
最近





































