查看完整案例

收藏

下载
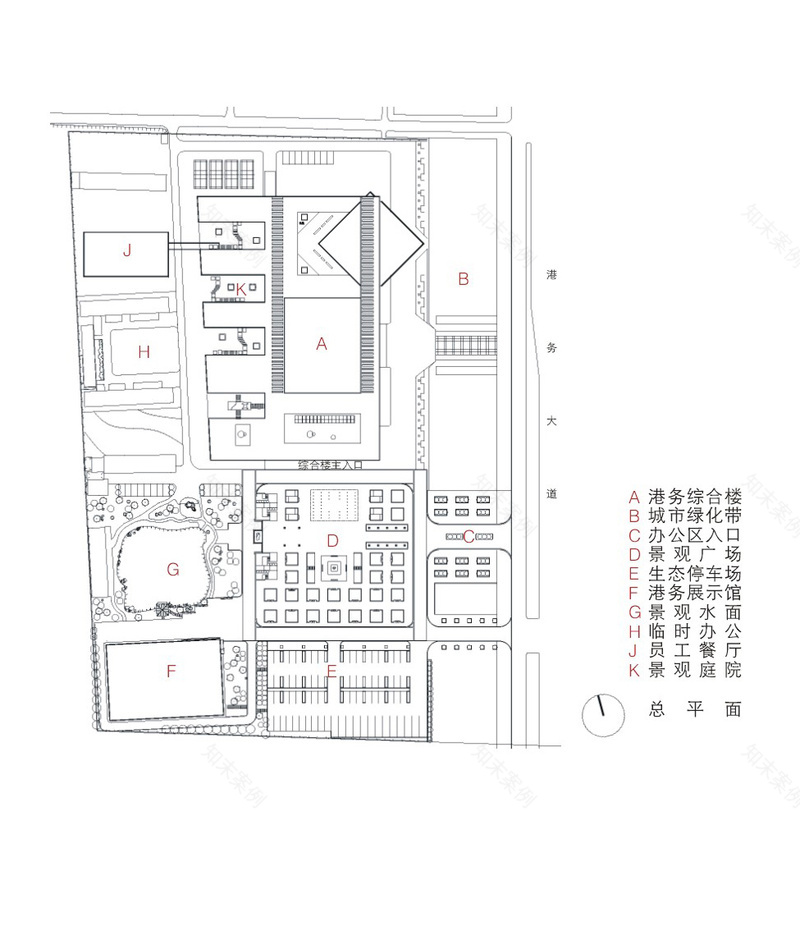
该项目规模43433㎡,建筑为五层,总高度22.4米。以“绿色晶体”的现代形象体现现代、国际、生态的设计理念。方案对港务综合楼内部功能进行了整体式设计,更加注重办公建筑的人性化、生态化。功能布局上分为三区两厅,分别为生态办公区、综合服务区、商务会议区及中心生态大厅和亲民政务大厅。建筑地下层设为地下停车场。对室内外空间进行了扩展式设计,建筑西侧凸出的建筑轮廓形成了各个半开放的空间院落,室外景观与办公区域有着很好的空间对话。建筑内部中心生态大厅和亲民政务大厅自然光的引入也使得综合楼办公环境更加人性化、生态化,从而形成了绿色建筑的特征,延续了基地的整体骨架与肌理。该项目获得“陕西省十八次优秀工程设计评选一等奖”。
设计人员名单
建筑:方案:李敬军 工种负责人:张建军 设计总负责: 杨蕊 俞惟涛 审定:刘小平
结构:安瑞 安平 袁江
水:杜湛如
暖:蒋俐颖
电:李林
客服
消息
收藏
下载
最近












